Architects: 2B.group
Location: Kyiv, Ukraine
Architects In Charge: Slava Balbek, Andrew Berezynsky, Alexander Ivasiv
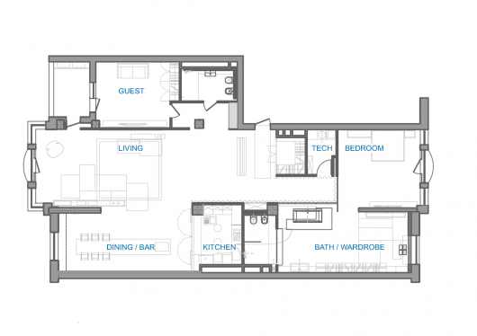
Area: 250.0 sqm
Year: 2015
Photographs: Andrey Bezuglov

From the architect. This apartment for a young couple is located in one of the most picturesque sights of Kyiv, on slopes of Dnieper river. Light hits and fills the space from dawn till sunset offering splendid colour change on both sides of the window. This time architects decided to stick to the minimal urban loft which remains an unusual choice for family homes and suited rather for public spaces.

Design is charismatic and cosy, highly admired by loft true lovers. 30m2 of rusted wall, 6 m dining table, 4m ceiling lamp – all these elements have been naturally integrated into a 250m2 apartment.

Zoning has been executed with glass walls only keeping the space visually open, yet when necessary electrical curtains can help create a cosy and in a way theatrical effect to a specific part of the space. At first sight apartment seems inhabited due to infinite emptiness of white walls.

At the same time such unusual cleanness reveals small details and elements of this unique apartment. Giant 6 meters long dining table is an epicentre of communication among family members, serving as an ultimate meeting point for cooking, working and playing.

This apartment as a whole as well as each room reflects the state of mind and soul of people living in It – the supremacy of freedom, simplicity and joy.

32nd apartment / 2B.group originally appeared on ArchDaily, the most visited architecture website on 15 Jun 2015.
send to Twitter | Share on Facebook | What do you think about this?
Source:: http://feedproxy.google.com/~r/ArchDaily/~3/eUlraYfhX68/