1102 Penthouse / Apical Reform

By AD Editorial Team

Architects: Apical Reform
Location: Gujarat University, Road, University Area, Ahmedabad, Gujarat 380009,
Area: 5000.0 ft2
Year: 2014
Photographs: Anil Patel

Principal/Designer: Amrish Patel
Director/Architect: Darshan Soni
Cg Artist: Manoj Gundaniya
Architect: Maharshi Bhatacharya
Product Designer: Luisa Januzzi

From the architect. Located in the upmarket neighbourhood of Judges Bungalow Road in Ahmedabad, India, the penthouse comprises of, the internally connected, two west wing apartment units on the 11th and 12th floor of Parijat Residences.

Design of the slightest of details and nuances of various aspects of the interior was attempted through this project, wherein was purposed to transform a standardized apartment to serve a family’s austere yet lavish lifestyle.

Grey and white surfaces with discrete, novel forms unify the house, and provide the ideal canvas for a splash of colour. The carefully selected decor with intriguing lighting design and customized artworks add character to the spaces.

Be it climbing the dramatic staircase or dining at the breakfast table, the attempted blending of artistry into every space elevates its humble function to an event.

The project highlights include the patterned screens, distinctive artworks, lighting design and a sculptural staircase.

1102 Penthouse / Apical Reform © Anil Patel
1102 Penthouse / Apical Reform © Anil Patel
1102 Penthouse / Apical Reform © Anil Patel
1102 Penthouse / Apical Reform © Anil Patel
1102 Penthouse / Apical Reform © Anil Patel
1102 Penthouse / Apical Reform © Anil Patel
1102 Penthouse / Apical Reform © Anil Patel
1102 Penthouse / Apical Reform © Anil Patel
1102 Penthouse / Apical Reform © Anil Patel
1102 Penthouse / Apical Reform © Anil Patel
1102 Penthouse / Apical Reform © Anil Patel
1102 Penthouse / Apical Reform © Anil Patel
1102 Penthouse / Apical Reform © Anil Patel
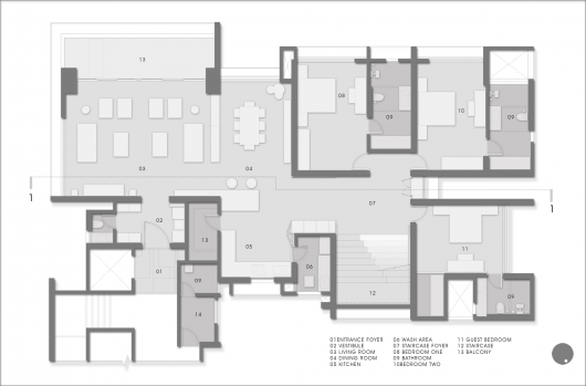
1102 Penthouse / Apical Reform 11th Floor Plan
1102 Penthouse / Apical Reform 11th Floor Plan Furniture Layout
1102 Penthouse / Apical Reform 12th Floor Plan
1102 Penthouse / Apical Reform 12th Floor Plan Furniture Layout
1102 Penthouse / Apical Reform Section

Source:: http://feedproxy.google.com/~r/ArchDaily/~3/KXIk50qdZJI/

Subscribe
Notify of
guest
0 Comments
Inline Feedbacks
View all comments