Architects: LEVENBETTS
Location: Amagansett, NY, USA
Area: 8000.0 ft2
Year: 2014
Photographs: Michael Moran / OTTO
Project Architect: Andrew Feuersteln
Partner Aia : David Leven
Partner: Stella Betts
Design Team: Deric Mizokami, Sebastian Mardi, Angi Tsang, Edwin May, Bret Quagliara
Structural Engineer: Guy Nordenson and Associates
Lighting Designer: Tilloston Design Associates
Contractor: Reinhardt O’Brien

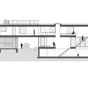
From the architect. 36SML House is an 8,000 square foot house on a 1 1⁄4 acre suburban lot a half a mile from the sea. The primary design charge was to create a big, but informal house where a range of activities can occur and visual connections are myriad.

Strong connections to the outdoors, maximization of natural ventilation and minimization of air conditioning, lots of light and the ability to have areas of intimacy within the open house were part and parcel of the charge.

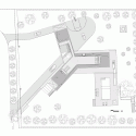
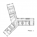
Our design solution, a triple- spoked house, is comprised of thin wings joined at an outdoor center with as much openness as practical. The three wings contain garage, kitchen/dining and living/ study on the ground floor and parents, kids and guest wings on the second floor.

The triple-spoke organization creates an alternative site plan that is counter to the front yardback yard organization of the typical single-family house lot.

By contrast, the triple-spoke scheme creates three yards instead of two. Re-configuring the conventional building lot further, the driveway punches through the three spokes at their junction and allows access into a garage that faces the rear of the lot instead of facing the street.

The passage of the driveway into the rear yard also provides for a covered entry in the center of the house.

36 SML House / LEVENBETTS originally appeared on ArchDaily, the most visited architecture website on 09 Jun 2015.
send to Twitter | Share on Facebook | What do you think about this?
Source:: http://feedproxy.google.com/~r/ArchDaily/~3/7uelLhBxkS8/


























