Architects: Arhitektura d.o.o.
Location: Ljubljana, Slovenia
Architect In Charge: Boštjan Gabrijelčič, Aleš Gabrijelčič
Year: 2015
Photographs: Jure Goršič, Courtesy of Arhitektura d.o.o.

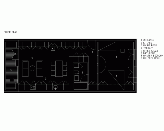
From the architect. The apartment is situated in a newly built housing project in Ljubljana. Our client was a vibrant young couple who was looking for an open living space connected with various functions. The original plan dimensions are 12.80 m x 5.40 m with a small terrace. Our idea was to put all the required services along the two longitudinal walls of the living room.
The master bedroom and the children room remained on the other side of the apartment. In order to preserve as much open space as possible we put in an 8 m long element study desk with bookshelves and a sitting bench by the entrance. On the other longitudinal wall there is a 5.60 m long kitchen with all the service needed.
We aimed for the right contrast between the newly introduced elements and the very bright living room space. Combination of black painted furniture elements with oak and wooden flooring gives us a feeling of elegance and openness which is exactly what we were looking for in this 70 m2 apartment.
Black Line Apartment / Arhitektura d.o.o. originally appeared on ArchDaily, the most visited architecture website on 09 Jun 2015.
send to Twitter | Share on Facebook | What do you think about this?
Source:: http://feedproxy.google.com/~r/ArchDaily/~3/_d0N8lvVva4/


























