Architects: alarciaferrer arquitectos
Location: Valle de Calamuchita, Cordoba, Argentina
Project Architects: Joaquin Alarcia , Federico Ferrer Deheza
Project Area: 85.0 m2
Project Year: 2014
Photographs: Lucas Carranza
Structures: German Serboraria
Construction: Pablo Parino

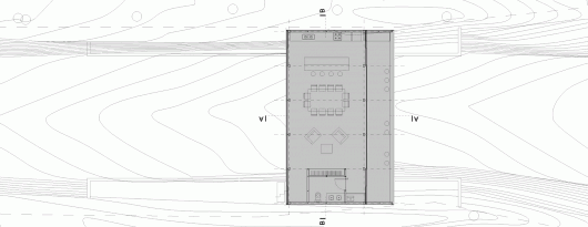
From the architect. Located in a forest on the banks of Lake Los Molinos, this multipurpose space responds to the need for a meeting place for a new housing development of second homes.



The project is located on a channel space formed by the imprint of an old route through the valley of Calamuchita, communicating the city of Córdoba with the south of the province.

The place is highly suggestive thanks to its topographic characteristics as well as by the atmosphere of gloom generated by the eucalyptus forest. The strategy is to respect the channel circulation space but also to experience it in the most intense way possible.

The result was a suspended pavilion in the shape of a bridge located transversely to the channel and supported on both sides on two concrete walls that define not only its access but also the scale of the intervention. These walls are executed in pigmented concrete seeking to achieve a texture and color in tune with the place.

The bridge space is designed by a metal Vierendeel truss that takes the entire volume height and is supported on both ends of the channel. The enclosure of the glass framing makes the volume transform and dilute into the forest landscape through its reflection or total transparency.

Bridge Pavilion / alarciaferrer arquitectos originally appeared on ArchDaily, the most visited architecture website on 28 May 2015.
send to Twitter | Share on Facebook | What do you think about this?
Source:: http://feedproxy.google.com/~r/ArchDaily/~3/rMkFAjwJoJI/





















