BSAS Geodesy Directorate Historical Archive / SMF Arquitectos

By AD Editorial Team

Architects: SMF Arquitectos
Location: Calle 61 e/ 10 y 11 Ciudad de , Argentina
Project Architects: Enrique Speroni, Gabriel Martinez, Juan Martin Flores
Project Area: 1000.0 m2
Project Year: 2014
Photographs: Albano Garcia

Collaborators: Matias Pecci, Rodrigo Fabbre, Dario Michalko
Budget: 15.000.000$AR.

From the architect. … original idea of “closed box” as a large container of program with certain openings, where the action happens inside …

…inside, the space “opens” to the flow of air and the views and “closes” in a controlled way to the natural light…

…a rewarding coexistence between the space for the document and the workspace for man is created…

We define a pure volume as an autonomous form that contrasts with the environment and demonstrates its representation as an institution for its originality and distinction through its own unique character that is not tied exclusively to formal and epidermal aspects but to environmental ones in the broadest sense.

The contrast between solids and voids is regulated by the layout of the openings, as these let in the necessary light only to the areas that require it. That is, where the program most needs it, balancing the functional and the formal.

The block is the key that defines the buildings and their urban space. It is what determines the urban scale, its density and its uses. Within this scale and its respective grid, we start from the assimilation of the party lines where the chosen lot has a minimal public facade and a rear that is five times as large. In this context, the building stands as a single body of net lines, pure, surrounded by an environment of residential scale that will change in time.

Within the proposal, the challenge is how to respond to a unique program: archives that keep cartographic documentation with a high historical and reference value, combined with activities that promote research and dissemination of that heritage. Everything must be resolved efficiently and simply.

This situation gives an outstanding physical presence that arises from its structural design and presents two faces that “communicate” with the outside in a singular way, front and back and two blind sides, the party walls. The integration in a given context is not seen as an act of mimesis but creatively. A public building should have a representative quality and its functions don’t need to be expressed but instead classified.

Archivo Histórico de la Dirección de Geodesia de  BSAS / SMF Arquitectos © Albano Garcia
Archivo Histórico de la Dirección de Geodesia de  BSAS / SMF Arquitectos © Albano Garcia
Archivo Histórico de la Dirección de Geodesia de  BSAS / SMF Arquitectos © Albano Garcia
Archivo Histórico de la Dirección de Geodesia de  BSAS / SMF Arquitectos © Albano Garcia
Archivo Histórico de la Dirección de Geodesia de  BSAS / SMF Arquitectos © Albano Garcia
Archivo Histórico de la Dirección de Geodesia de  BSAS / SMF Arquitectos © Albano Garcia
Archivo Histórico de la Dirección de Geodesia de  BSAS / SMF Arquitectos © Albano Garcia
Archivo Histórico de la Dirección de Geodesia de  BSAS / SMF Arquitectos © Albano Garcia
Archivo Histórico de la Dirección de Geodesia de  BSAS / SMF Arquitectos © Albano Garcia
Archivo Histórico de la Dirección de Geodesia de  BSAS / SMF Arquitectos © Albano Garcia
Archivo Histórico de la Dirección de Geodesia de  BSAS / SMF Arquitectos © Albano Garcia
Archivo Histórico de la Dirección de Geodesia de  BSAS / SMF Arquitectos © Albano Garcia
Archivo Histórico de la Dirección de Geodesia de  BSAS / SMF Arquitectos © Albano Garcia
Archivo Histórico de la Dirección de Geodesia de  BSAS / SMF Arquitectos © Albano Garcia
Archivo Histórico de la Dirección de Geodesia de  BSAS / SMF Arquitectos © Albano Garcia
Archivo Histórico de la Dirección de Geodesia de  BSAS / SMF Arquitectos © Albano Garcia
Archivo Histórico de la Dirección de Geodesia de  BSAS / SMF Arquitectos © Albano Garcia
Archivo Histórico de la Dirección de Geodesia de  BSAS / SMF Arquitectos © Albano Garcia
Archivo Histórico de la Dirección de Geodesia de  BSAS / SMF Arquitectos © Albano Garcia
Archivo Histórico de la Dirección de Geodesia de  BSAS / SMF Arquitectos © Albano Garcia
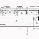
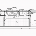
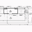
Archivo Histórico de la Dirección de Geodesia de  BSAS / SMF Arquitectos Ground Floor Plan
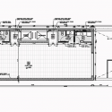
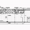
Archivo Histórico de la Dirección de Geodesia de  BSAS / SMF Arquitectos Mezzanine Floor Plan
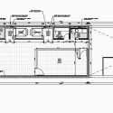
Archivo Histórico de la Dirección de Geodesia de  BSAS / SMF Arquitectos First Level Floor Plan
Archivo Histórico de la Dirección de Geodesia de  BSAS / SMF Arquitectos Second Level Floor Plan
Archivo Histórico de la Dirección de Geodesia de  BSAS / SMF Arquitectos Roof Plan
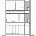
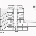
Archivo Histórico de la Dirección de Geodesia de  BSAS / SMF Arquitectos Longitudinal Section AA
Archivo Histórico de la Dirección de Geodesia de  BSAS / SMF Arquitectos Longitudinal Section BB
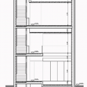
Archivo Histórico de la Dirección de Geodesia de  BSAS / SMF Arquitectos Cross Section 1
Archivo Histórico de la Dirección de Geodesia de  BSAS / SMF Arquitectos Cross Section 2
Archivo Histórico de la Dirección de Geodesia de  BSAS / SMF Arquitectos Cross Section 3
Archivo Histórico de la Dirección de Geodesia de  BSAS / SMF Arquitectos Elevation
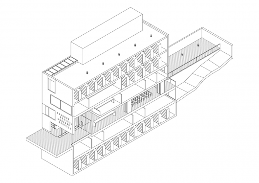
Archivo Histórico de la Dirección de Geodesia de  BSAS / SMF Arquitectos Isometric
Archivo Histórico de la Dirección de Geodesia de  BSAS / SMF Arquitectos Detail
Archivo Histórico de la Dirección de Geodesia de  BSAS / SMF Arquitectos Drawing
Archivo Histórico de la Dirección de Geodesia de  BSAS / SMF Arquitectos Basement Floor Plan

Source:: http://feedproxy.google.com/~r/ArchDaily/~3/BqNn5EiZlUs/

Subscribe
Notify of
guest
0 Comments
Inline Feedbacks
View all comments