Architects: Paolo Carlesso
Location: Via Gorizia, 77, 21054 Fagnano Olona VA, Italy
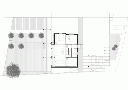
Area: 290.0 sqm
Year: 2014
Photographs: Simone Bossi

From the architect. Like the time
A tree can’t grow up in few days. My trees are still twigs, my sons are still children, my house is not over yet, there is still to do , everyday life is magic. Perhaps architecture needs time.

The design of this house was an opportunity to deal with the problem of constructing in a radical and anti-cyclical way. The construction was carried out in partial self- made; foundations, installation of perimeter walls have been carried out by specialized companies, the rest of the building was done self-made.

The willingness / necessity of use materials and constructive ways sustainable, economic and requiring short labor has dictated all the design choices. The walls of the house are wood stuck, the internal structure is a steel frame, the exterior is made of a ventilated facade in ecological fiber cement.

The willingness / necessity of latch on to the history of this specific place, refusing definitely contemporary urban sprawl; orientation and location of settlements have been dictated by rural architecture. Building typology and finishing materials have been taken since the first “heroic” industrial expansion. Organization of the lot, poverty of the materials, the decision to build self made are related to the period of colonization of land happened at the hands of immigrants in the mid-1900s.

The willed / necessary independence in conducting of the construction was also adopted for the financial aspect, therefore without support from banks.

The Hyperborean literature and not only are the basis of the will to break out the absolute immobility of our country, that the crisis has accentuated. Juoksuhaudantie (Kari Hotakainen), Doppler an elk is for life… not just for Christmas (Erlend Loe), The Best Village in the World, The Howling Miller (Arto Paasilinna), but also: The Man Who Planted Trees (Jean Giono), The Gardener’s Year (Karel Capek), were modern inspirers in fighting fighting against the skill and stupidity, accepting the imperfection of matter, the building on their own, the form, the completion times in favor of content, training, nature.

Casa CM / Paolo Carlesso originally appeared on ArchDaily, the most visited architecture website on 15 Feb 2015.
send to Twitter | Share on Facebook | What do you think about this?
Source:: http://feedproxy.google.com/~r/ArchDaily/~3/8vJTvyNG0p4/

























