Casa Na Mouraria / José Andrade Rocha

By Fabian Cifuentes

Architects:
Location: Rua Mouraria, 1100-341 , Portugal
Area: 64.0 sqm
Year: 2015
Photographs: Ricardo Oliveira Alves

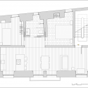
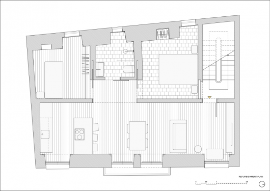
From the architect. This house in the historic neighbourhood of Mouraria, Lisbon, suffered many transformations over the years that compartmentalised the space. The relation with the street was underexplored and the connections between social and private areas were ambiguous.

The intervention aimed to open the social area to the street, uniting the living room and the kitchen in a gesture that occupies the whole extension of the façade, protecting the bedrooms and allowing serenity or agitation in distinct moments.

The preservation and restoration of traditional materials, such as carpentry and stuccowork, were a premise to the project, which aimed to smoothly combine the pre-existing elements and the new ones.

In a house in only 55m2, the circulation spaces were reduced to its minimum dimension – a box that opens or closes to the social area, rationalizing the distribution to the remaining private spaces. This new configuration, more flexible, allows intimacy or open space – as one wishes to live.

Casa Na Mouraria / José Andrade Rocha © Ricardo Oliveira Alves
Casa Na Mouraria / José Andrade Rocha © Ricardo Oliveira Alves
Casa Na Mouraria / José Andrade Rocha © Ricardo Oliveira Alves
Casa Na Mouraria / José Andrade Rocha © Ricardo Oliveira Alves
Casa Na Mouraria / José Andrade Rocha © Ricardo Oliveira Alves
Casa Na Mouraria / José Andrade Rocha © Ricardo Oliveira Alves
Casa Na Mouraria / José Andrade Rocha © Ricardo Oliveira Alves
Casa Na Mouraria / José Andrade Rocha © Ricardo Oliveira Alves
Casa Na Mouraria / José Andrade Rocha © Ricardo Oliveira Alves
Casa Na Mouraria / José Andrade Rocha © Ricardo Oliveira Alves
Casa Na Mouraria / José Andrade Rocha © Ricardo Oliveira Alves
Casa Na Mouraria / José Andrade Rocha © Ricardo Oliveira Alves
Casa Na Mouraria / José Andrade Rocha © Ricardo Oliveira Alves
Casa Na Mouraria / José Andrade Rocha © Ricardo Oliveira Alves
Casa Na Mouraria / José Andrade Rocha © Ricardo Oliveira Alves
Casa Na Mouraria / José Andrade Rocha © Ricardo Oliveira Alves
Casa Na Mouraria / José Andrade Rocha © Ricardo Oliveira Alves
Casa Na Mouraria / José Andrade Rocha © Ricardo Oliveira Alves
Casa Na Mouraria / José Andrade Rocha © Ricardo Oliveira Alves
Casa Na Mouraria / José Andrade Rocha © Ricardo Oliveira Alves
Casa Na Mouraria / José Andrade Rocha © Ricardo Oliveira Alves
Casa Na Mouraria / José Andrade Rocha © Ricardo Oliveira Alves
Casa Na Mouraria / José Andrade Rocha © Ricardo Oliveira Alves
Casa Na Mouraria / José Andrade Rocha © Ricardo Oliveira Alves
Casa Na Mouraria / José Andrade Rocha Floor Plan
Casa Na Mouraria / José Andrade Rocha Floor Plan
Casa Na Mouraria / José Andrade Rocha Section

Source:: http://feedproxy.google.com/~r/ArchDaily/~3/Np2PDX2MdrI/

Subscribe
Notify of
guest
0 Comments
Inline Feedbacks
View all comments