Architects: K+S Architects
Location: Tsukuba, Ibaraki Prefecture, Japan
Architect In Charge: Nobuya Kashima, Aya Sato
Area: 1440.0 sqm
Year: 2014
Photographs: Hiroshi Ueda, Yoshihiro Asada
Engineer: Ken Nagasaka Engineering Network
Mechanical & Electorical Engineer: System Planning Corporation
Construction Builder: Narushima Kensetsu
Site Area: 7,402.54 sqm
Total Floor Area: 1,611.62 sqm

From the architect. The children’s nursing home “Tsukuba-Aiji-en” is built in the forest and the field in Tsukuba city. 40 children live in these houses in the great nature. These houses are composed of 5 units. “3 Group living units”, “Office working and communication unit”, “Training unit for parents and children”.

Each units are connected by the oval corridor, and they are located to be able to watch the life and activity of the children through a surrounded courtyard.

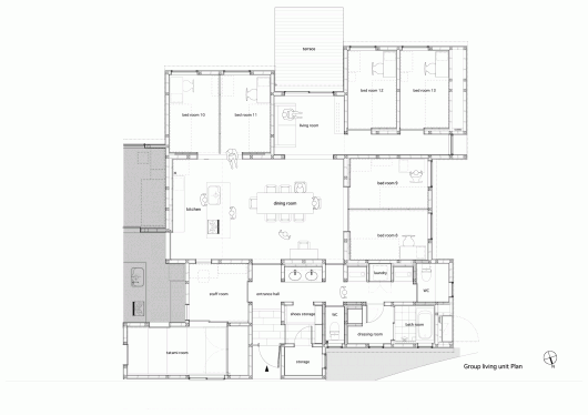
A group living unit is the house where 6 or 7 children live as a family. Two group living units are connected and composed of two families. We design the dining room with high side-light like outside space, and design the outdoors-like atmosphere by the wall made by clapboard of red cedar. The dining room are surround by children’s private rooms, and the children can watch each other easily. The warm light leaks out from the high sidelight, and makes the warm atmosphere for the children who come back to their houses in the night.

The hall for regional exchange (2nd floor of the office working unit) formed a big space by the wooden lattice beams. The outside aluminum eaves (the office working unit) block the summer sunlight, at the same time, the eaves make the shadow to the building outer wall.

The training unit for parents and children consisted of 3 houses, and we design the atmosphere like a heartful family home.
We design these houses where the children live happily……

Children’s Nursing Home “Tsukuba-Aiji-en” / K+S Architects originally appeared on ArchDaily, the most visited architecture website on 19 Jan 2015.
send to Twitter | Share on Facebook | What do you think about this?
Source:: http://feedproxy.google.com/~r/ArchDaily/~3/3rb3xa88C6g/
























