Architects: DNSJ.arq
Location: Rua dos Lagares 24, 1100-300 Lisboa, Portugal
Architect In Charge: Nuno simões
Year: 2014
Photographs: Fernando Guerra | FG+SG
Collaborators: Joana Barbosa, Sérgio Rebelo, Gonçalo Nicolau
Structure: Eng.º Luis Gião Marques
Specialty Projects: Consultenergia
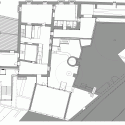
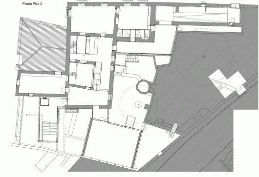
From the architect. The CIM (Mouraria Creative Hub) is a hub for creative activities hosted in an ancient building complex situated in Mouraria, a historical quarter of Lisbon. This building complex, with its origins pre-earthquake (1755) and even, what was considered to be Islamic origins, was in an advanced state o decay when we’re assigned to design the CIM.
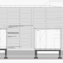
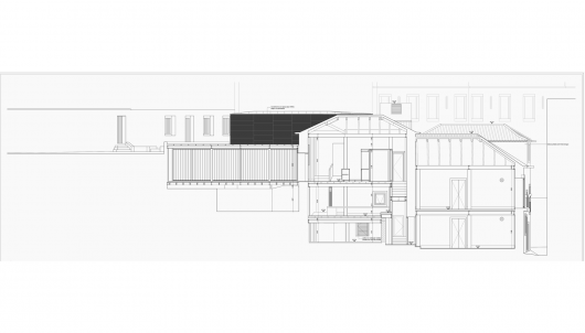
Only the masonry walls survived; they were reinforced to be able to support the wooden pavements and roof. Also some parts were added using light structures and contemporary materials so one could have clear perception of what was original and what is new.
The contrast between the white surfaces (plaster walls and painted metal and wood structural elements) and the black ones (aluminium windows, the black iron shades and the black VIROC panels) achieved to expressed our conceptual goal.
CIM – Mouraria Creative Hub / DNSJ.arq originally appeared on ArchDaily, the most visited architecture website on 01 May 2015.
send to Twitter | Share on Facebook | What do you think about this?
Source:: http://feedproxy.google.com/~r/ArchDaily/~3/fSzqXKea73w/

















































