Architects: ZIEGLER Antonin architecte
Location: Impasse des Falaises, 76400 Senneville-sur-Fécamp, France
Design Team: Antonin Ziegler
Area: 60.0 sqm
Year: 2014
Photographs: Antonin Ziegler

From the architect. Beyond the Walls
On the last path before the earth falls away into the sea, a small country house is tucked into an embankment. Introverted on the edge of the cliffs, it protects itself from the winds and the ocean spray. Inside, piles of books are stacked in every corner and recess. The rhythm of the day is marked by the turning of pages and punctuated by the comings and goings of the house cats.

The occupants feel cramped and not isolated enough. They desire a place where they can read, write, and dream… where they can take their stories beyond the thick walls of stone that surround them.

At the end of an impasse, on top of a cliff, at the end of the world … What better place to escape from the world, to create a space that allows thoughts to run wild?

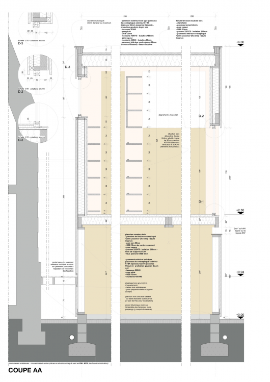
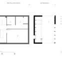
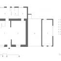
A passageway
Inserted into the existing house, a small stair leads to a space that is suspended amongst the trees. From it, we can perceive the village and the horizon along the sea below. Open on three sides, it is like a book opened onto the landscape.

The space provides an escape from every known frame of reference. It clears away limits through a rupture in form, scale, and structure. It marks the will to create a special and unique place. Abandoning the roof in order to create a simple form without any particular associations, the walls are covered inside and out with wooden boards. The dimension of the main window, unusual and nonstandard, entirely modifies the relationship with the exterior. From the concealment of the structure—so that the window can open completely onto the landscape—to the repetition of the lamps into the distance through a game of reflection, the space leads its occupants into towards an unknown and mysterious world.

The window of a house that exists no longer
Beyond simply providing a view for its inhabitants and offering a place for evasion, the space also creates a new image within the landscape. It dramatizes an introspective life as incarnated by the library, frames it through the large opening, and decorates it with the surrounding nature.

The focalization on this newly unveiled space creates a relationship that tends to make the existing house disappear. The perception of this strange abstract scene, rising ex nihilo, proposes to the observer as well to escape into his own imagination.

Cliffs Impasse / ZIEGLER Antonin architecte originally appeared on ArchDaily, the most visited architecture website on 02 Apr 2015.
send to Twitter | Share on Facebook | What do you think about this?
Source:: http://feedproxy.google.com/~r/ArchDaily/~3/jQLEmE8LmGs/










































