Concha y Toro Winery Research and Innovation Center / Claro + Westendarp Arquitectos

By AD Editorial Team

Architects: Claro + Westendarp Arquitectos
Location: , , Maule Region,
Project Architects: Juan Ignacio Claro E., Andrés Westendarp Z
Collaborators: Benjamín Goñi H, Ana Rodrigo R, Eduardo Cid B
Photographs: Pablo Casals Aguirre

Construction: CGI Ingeniería
Structures: Claudio Hinojosa
Lighting: Oriana Ponzini
Hvac: Climatecno
Industrial Cooling: Bordachar
Plumbing: Angélica Denegri
Gases: Indura
Automatization: Digital Control
Furniture: Intergroupe, Fernando Mayer

From the architect. The commission consisted of the development of the architectural project for the Concha y Toro Winery Research and Innovation Center, from the siting-the only condition was that it should be in the Maule Region, in the wine center that the winery has in the region- through the implementation of the various buildings of the program.

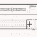
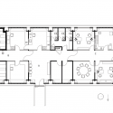
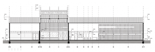
The program consists of two laboratories -one for wines and the other agricultural-a microvinification winery, a greenhouse and an extension center. All this, grouped in a Central Plaza, a courtyard for the Microvinification winery, and access control and parking.

The Research and Innovation Center is the place where the winery investigates, develops and distributes its products and new developments in the wine sector. The immediate relation of this center is to vivaria -places where clones and new grapes are developed-, vineyards and wineries. These three aspects are the source of the scientific aspects. At the same time, and at the other end, the relationship is also with the scientific world, wine producers and the academic environment. Therefore, the Research and Innovation Center is the link between these two worlds that live in the antipodes: the origin of the wine and the final consumer.

This was fundamental for the choice of the site. We chose a spot that is on a hill, with natural views of the Maule river valley. At the foot of the hill, vineyards are located and farther away are the wine-making areas. In the valley are the vivaria. Consequently, from that place it is possible to observe the three original instances.

The buildings were grouped in a courtyard, an open space which by the arrangement of buildings, is transformed into a closed place that has some “windows” that direct overlooking the three points previously commented. The courtyard contains an amphitheater that is the result of the adoption of the natural slope.

The five buildings are related to each other: the Vivarium to the Agricultural Laboratory, and these in turn with the Vivaria. The Microvinification Winery with the Oenology Laboratory and these, in turn, with the Vineyards and Wineries. The Extension Center, finally, is the building for the diffusion and management of the Center, therefore its relationship with all the buildings and the site, why their location and shape is protagonist.

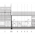
The shape of the buildings reflects the agricultural tradition of the place. The cellars, sheds and other typical buildings, over the years, are high gabled roofs -for the intense rainfall of the area- an orthogonal plan, wood claddings and metal roofs. This suggested similar forms but careful and analyzed geometry (golden section, regular equilateral triangles, etc.) and the use of high-tech materials with a very symbolic and chromatic load: Corten steel for buildings where scientific tasks are performed (laboratory, greenhouse and cellar) and wood for the Extension Center.

All roofs are made of zincalum.

Also, the structure in all the buildings (metal and concrete) is proposed exposed as a formal way to accentuate the rigor and technology that is employed at the Center.

Another important item is the way that natural light enters buildings: Laboratories need very little natural light and positive internal pressure, which is why windows are virtually absent. For the Vivarium, the building is 100% transparent with automatic solar and ventilation control.

The Microvinification Winery has no windows because the fermentation and winemaking processes require controlled temperatures. Only a skylight was designed on the roof.

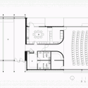
The only building with windows, responding to internal program, is the Extension Center: tasting rooms and lobbies, central foyer, auditorium. All buildings feature the latest technology available according to the program and specific requirements of each building for air conditioning, ventilation, lighting, furniture, bacteriological control, audiovisual systems, etc.

The project was developed during 2013.

The first stage, already built, consists of the Central Courtyard, Agriculture Laboratory, Microvinification Winery and Extension Center. The second stage, planned for 2015, comprises the Vivarium and Oenology Laboratory.

Centro de Investigación e Innovación Viña Concha y Toro / Claro + Westendarp Arquitectos © Pablo Casals Aguirre
Centro de Investigación e Innovación Viña Concha y Toro / Claro + Westendarp Arquitectos © Pablo Casals Aguirre
Centro de Investigación e Innovación Viña Concha y Toro / Claro + Westendarp Arquitectos © Pablo Casals Aguirre
Centro de Investigación e Innovación Viña Concha y Toro / Claro + Westendarp Arquitectos © Pablo Casals Aguirre
Centro de Investigación e Innovación Viña Concha y Toro / Claro + Westendarp Arquitectos © Pablo Casals Aguirre
Centro de Investigación e Innovación Viña Concha y Toro / Claro + Westendarp Arquitectos © Pablo Casals Aguirre
Centro de Investigación e Innovación Viña Concha y Toro / Claro + Westendarp Arquitectos © Pablo Casals Aguirre
Centro de Investigación e Innovación Viña Concha y Toro / Claro + Westendarp Arquitectos © Pablo Casals Aguirre
Centro de Investigación e Innovación Viña Concha y Toro / Claro + Westendarp Arquitectos © Pablo Casals Aguirre
Centro de Investigación e Innovación Viña Concha y Toro / Claro + Westendarp Arquitectos © Pablo Casals Aguirre
Centro de Investigación e Innovación Viña Concha y Toro / Claro + Westendarp Arquitectos Courtesy of Claro + Westendarp Arquitectos
Centro de Investigación e Innovación Viña Concha y Toro / Claro + Westendarp Arquitectos Courtesy of Claro + Westendarp Arquitectos
Centro de Investigación e Innovación Viña Concha y Toro / Claro + Westendarp Arquitectos Courtesy of Claro + Westendarp Arquitectos
Centro de Investigación e Innovación Viña Concha y Toro / Claro + Westendarp Arquitectos Courtesy of Claro + Westendarp Arquitectos
Centro de Investigación e Innovación Viña Concha y Toro / Claro + Westendarp Arquitectos Courtesy of Claro + Westendarp Arquitectos
Centro de Investigación e Innovación Viña Concha y Toro / Claro + Westendarp Arquitectos Courtesy of Claro + Westendarp Arquitectos
Centro de Investigación e Innovación Viña Concha y Toro / Claro + Westendarp Arquitectos Courtesy of Claro + Westendarp Arquitectos
Centro de Investigación e Innovación Viña Concha y Toro / Claro + Westendarp Arquitectos Courtesy of Claro + Westendarp Arquitectos
Centro de Investigación e Innovación Viña Concha y Toro / Claro + Westendarp Arquitectos Courtesy of Claro + Westendarp Arquitectos
Centro de Investigación e Innovación Viña Concha y Toro / Claro + Westendarp Arquitectos Courtesy of Claro + Westendarp Arquitectos
Centro de Investigación e Innovación Viña Concha y Toro / Claro + Westendarp Arquitectos Courtesy of Claro + Westendarp Arquitectos
Centro de Investigación e Innovación Viña Concha y Toro / Claro + Westendarp Arquitectos Courtesy of Claro + Westendarp Arquitectos
Centro de Investigación e Innovación Viña Concha y Toro / Claro + Westendarp Arquitectos Courtesy of Claro + Westendarp Arquitectos
Centro de Investigación e Innovación Viña Concha y Toro / Claro + Westendarp Arquitectos Courtesy of Claro + Westendarp Arquitectos

Source:: http://feedproxy.google.com/~r/ArchDaily/~3/Ag2QvZW-Xx4/

Subscribe
Notify of
guest
0 Comments
Inline Feedbacks
View all comments