Architects: Radu Teacă
Location: Bulevardul Victoriei, Sibiu, Romania
Area: 375.0 sqm
Photographs: Peter Marx
Collaborating Architect: Péter Marx, Raluca Velescu
Structure: Dorin Lazăr

From the architect. An important aspect was to achive a harmonious integration of the building on its own site. Sibiu is an old city with a well-defined center of medieval buildings, dating from the Renaissance and Baroque period. Therefore, the double pitched roof, the proportions of windows and the spaces between them were an attempt to adjust to existing archetypes. All these elements add a “gothic” spirit to the building, ensuring a better integration on the site.

Another purpose of this project was to obtain the essence of form on a minimalist key. In order to accomplish this, we used the same material for both roof and facade. It is understandable how the roof dictated the material for the vertical elevations as well. This is how the all-copper solution crystallised, copper being a material that ages beautifully and diversely.

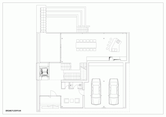
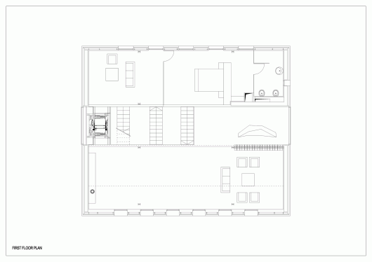
The simple volume of the house is divided in two, by a void that illuminates the interior, bringing the light right in the middle of the composition. Inside, a fluent and continuous space is created by the presence of this atrium, representing the core of the building, creating an introverted space despite the small size of the site. Half levels add dynamism to the construction and their connection is made, besides the immaculate white stairs, by an elevator.

To highlight the spectacular interior volume we used mostly white, so the color perception does not interfere with the perception of space itself. In this way we have managed to place the “public” functions facing the street (hall, living room) and the “private” ones facing the backyard (bedrooms).

Also for reasons of privacy the home cinema is located in the semi-basement, facing a generous english courtyard. In order to make the semi-basement, part of the daytime area, the english courtyard was outlined by stepped rowes filled with greenery/vegetation and the transparency of the home cinema windows represents an extension of the room towards this relaxing courtyard.

The stage design of the plants with the stepped rows ensures a discreet nightime lighting and protection from the surroundings. The image of the aging copper brings life to the building, but also clashes with the simplicity of the volume, something highly beneficiary in this context.

In the spirit of unity of expression both the fence and the gate were made of oxidized steel, protected with a colorless varnish. The kitchen, the technical room and the home cinema are placed in the semi-basement, the ground floor has an entry hall and the stairs leading to the dining area; then we find the living room placed on the first floor with the related stairs that arrive to the sleeping areas – the master bedrooms and the other bedrooms on the last floor, facing the backyard.

The rhythm given by the full and hollow areas from the facade benefits the interior design. The beneficiary is an art collector and this way the paintings can be placed organized and rhythmically between the windows. The facade is well isolated and ventilated, also granted with a heath recovery system, placed near the roof.

Copper House in Sibiu / Radu Teacă originally appeared on ArchDaily, the most visited architecture website on 12 Mar 2015.
send to Twitter | Share on Facebook | What do you think about this?
Source:: http://feedproxy.google.com/~r/ArchDaily/~3/I73YKur16jk/

























