One of ARCHITECT Magazine’s six winners of a 2015 Progressive Architects Award (P/A), NADAAA and Himma Studio‘s Ordos 20 + 10 reflects a reconfiguration of the office typology for compact spaces.
The project is part of a high density office park masterplan in Ordos City, located in Inner Mongolia, in which developments are subject to stringent zoning regulations. Offices included in the area must be comprised of multiple cubic volumes, and lack what NADAAA and Himma Studio describe as “an immediate urban context.” Learn more about the project and the architects’ response to these considerations after the break.
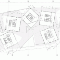
Ordos 20 + 10 employs a series of rotated cuboid forms whose interiors provide ample office and work spaces. Five cubes are arranged on the 12 000m2 site, with offices in each of these bordering a central service core. An exterior facade of a volcanic stone rain screen and structural glazing lend the complex a contemporary aesthetic, while landscaping of the proximal outdoor areas retains a distinctly human scale. NADAAA and Himma Studios applied a “masonry logic” to their use of the masonry panels, whose appearance evokes a variation of the conventional office building “windows stacked on windows”.

The buildings are linked by a “long and interior promenade that enables both vertical and lateral layout customization for office tenants.” Conscious of the demand for flexible and innovative office real estate, the interior space features an open plan that accommodates a variety of office arrangements.

Outdoor spaces are reserved for multiple pedestrian and vehicular approaches, and a larger central space used as a means to “[orient] the assembly of cubic buildings.” A unifying element between the cubic volumes are “sliced corners,” which produce alternate effects of entrances, archways, atria, and cantilevers.
The project’s triple-glazed windows are designed to respond to the extreme temperatures of the site, and stormwater catchment facilities will be installed on site. Water retained in these facilities will be channelled to a reflecting pool proximal to the structure, designed to humidify the courtyard during dry summers and provide an evaporative cooling effect.

Architects: NADAAA, Himma Studio
Location: Dongsheng, Ordos, Inner Mongolia, China
Principles In Charge: Nader Tehrani, Katie Faulkner (NADAAA), Hailim Suh (Himma Studio
Project Coordinators: Tom Beresford, Remon Alberts, Arthur Chang (NADAAA), Cyrus Dochow (Himma Studio
Design Team: Dan Gallagher, Tim Clark, Sarah Hirschman, Sina Mesdaghi, Li Huang, Andrew Manto, Jonathan Palazzolo, Tim Wong, Joanna Rafael, Caitlin Scott, Ryan Murphy (NADAAA)
Local Design Institute: China Construction Design International (CCDI)
Structural, Mechanical, Electrical, And Plumbing Engineers: China Construction Design International (CCDI)
Area: 120000.0 sqm
Year: 2012
Photographs: Courtesy of NADAAA
Cubic Buildings by NADAAA and Himma Studio Redefine the Office Space originally appeared on ArchDaily, the most visited architecture website on 01 Mar 2015.
send to Twitter | Share on Facebook | What do you think about this?
Source:: http://feedproxy.google.com/~r/ArchDaily/~3/LFz7vuFFU9o/


























