Architects: Archea Associati
Location: Seregno MB, Italy
Architects In Charge: Laura Andreini, Marco Casamonti, Silvia Fabi, Giovanni Polazzi
Area: 1875.0 sqm
Year: 2012
Photographs: Marco Casamonti
Director Of Works: Giovanni Polazzi
Direction Of Works Assistant: Mattia Mugnaini, Domenico Cacciapaglia, Ezio Birondi
Safety Plan: Ezio Birondi
Structures: Matteo Fiori Luca Varesi
Thermotechnical Systems: Studio Armondi – Armando Armondi Studio TI – Ennio Menotti
Interior Design: Archea Associati (Laura Andreini, Marco Casamonti, Silvia Fabi, Giovanni Polazzi)
Graphic Design: Archea Associati (Laura Andreini, Marco Casamonti, Silvia Fabi, Giovanni Polazzi)
General Contractor: RM Costruzioni s.r.l.
Cost: 3.200.000,00 Euro

From the architect. The project area is a plot behind a nursery school, alongside an area which will become a public park, located in a disorganised residential area.

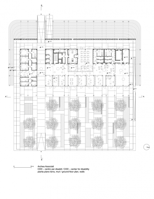
The functional program, aimed at disabled persons, features primary and complementary activities – classrooms and workshops – conceived as the structures which are essential to the conduction of the socio-educational activities associated with the presence of disabled persons.

The project forms a special relationship with the surroundings, hypothesizing a park accessible by a wheelchair user because the trees “perforate” a sill in smooth concrete, the pavement of this kind of artificial forest.

The area has thus been redesigned as the natural continuation of the park, which bends to form the architectural volume whose sill is transformed from pavement to roof.

One façade is thus open while the other is closed with the exception of the cut which defines the entrance, which can be reached by a ramp accessible to vehicles. The rectangular plan develops along the corridor communicating with the various rooms, which are also connected externally by a covered path.

Day Centre and Housing for the Disabled / Archea Associati originally appeared on ArchDaily, the most visited architecture website on 29 Jan 2015.
send to Twitter | Share on Facebook | What do you think about this?
Source:: http://feedproxy.google.com/~r/ArchDaily/~3/rRdPj_8LQP0/
































