Architects: JYA-RCHITECTS
Location: 174 Bansong-dong, Hwaseong-si, Gyeonggi-do, South Korea
Area: 246.0 sqm
Year: 2014
Photographs: Hwang hyochel
Structure: SPF wooden structure + H-Bim
Lighting: SAMIL / LIMAS
Construction: Deif House

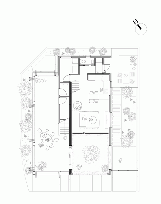
From the architect. The program for this house for two sisters and their families was relatively clear. They wanted the house in bright tones with a simple exterior design; desired an outdoor space that received good sunlight; and wished to build with wood.


The most difficult aspect about this project was that three parking spots had to be secured on a small plot of land. We first created a simple exterior volume and then from within drew out the interior space.


While one of the houses followed the shape of the exterior design, the other house took the form of a hidden terrace house within the outer house. Then, to resolve the parking lot problem, we elevated one of the houses. We created a steel skeleton frame for the ground floor and a parking lot, placing a three-story house on top. Size-wise, it became a four-story wooden building. We had to locate a structural design firm that works with wood structures, which is relatively rare in Korea. We also took great pains to consider the detail of the different contraction and expansion coefficients of steel frames and wood jointers. The Dongtan House is a four-story wooden residential home with different spatial structures within one volume.


Dongtan House / JYA-RCHITECTS originally appeared on ArchDaily, the most visited architecture website on 01 Mar 2015.
send to Twitter | Share on Facebook | What do you think about this?
Source:: http://feedproxy.google.com/~r/ArchDaily/~3/pJCyvPEld18/










































