Elastic / Garcia Tamjidi Architecture Design

By AD Editorial Team

Architects: Garcia Tamjidi Architecture Design
Location: , CA, USA
Builder: Rees Properties, Inc.
Area: 18500.0 ft2
Year: 2015
Photographs: Joe Fletcher Photography

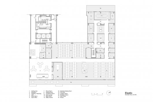
From the architect. Having undergone a complete re-branding effort, Elastic – formerly Elasticsearch – expanded into a larger headquarters in Mountain View, CA.

Continuing to produce an open source, real time search and analytics engine, the design of the office focuses on spaces for presentation, engineering, sales and support.

A fully transparent work environment, the open office is organized around meeting rooms; formal and casual, that use and reinforce the brands vibrant colors.

Maximizing on the high ceilings and fully glazed exterior walls, the open office allows for natural daylight to illuminate the spaces.

Hallways and meeting rooms are marked with suspended sound baffles that reinforce circulation while providing greater room acoustics.

Next phases of work will allow for the continued growth of this highly successful company.

Elastic / Garcia Tamjidi Architecture Design © Joe Fletcher Photography
Elastic / Garcia Tamjidi Architecture Design © Joe Fletcher Photography
Elastic / Garcia Tamjidi Architecture Design © Joe Fletcher Photography
Elastic / Garcia Tamjidi Architecture Design © Joe Fletcher Photography
Elastic / Garcia Tamjidi Architecture Design © Joe Fletcher Photography
Elastic / Garcia Tamjidi Architecture Design © Joe Fletcher Photography
Elastic / Garcia Tamjidi Architecture Design © Joe Fletcher Photography
Elastic / Garcia Tamjidi Architecture Design © Joe Fletcher Photography
Elastic / Garcia Tamjidi Architecture Design © Joe Fletcher Photography
Elastic / Garcia Tamjidi Architecture Design © Joe Fletcher Photography
Elastic / Garcia Tamjidi Architecture Design Floor Plan

Source:: http://feedproxy.google.com/~r/ArchDaily/~3/y_QYmTuEec0/

Subscribe
Notify of
guest
0 Comments
Inline Feedbacks
View all comments