Architects: S27
Location: Arlington, VA, USA
Area: 222.0 sqm
Year: 2013
Photographs: Hoachlander Davis Photography / Anice Hoachlander
Structural Engineer: Ehlert/Bryan Inc
General Contractor: Wakefield Building Group

From the architect. This new house is for an “empty-nester” couple downsizing to a smaller residence now that their children have grown.

The program for the new house was only 2400 square feet, but this was significantly larger than the 1600 square feet found in the existing homes in the neighborhood.

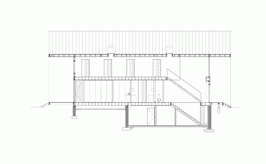
The most contextually appropriate massing for the new house was to work with the “pill-box” typology of the original structure.

Rotating the orientation of the roof line ninety degrees provide a house with a similar street presence massing but the ability to move deeper into the rear of the site.

The home was to be constructed by a local builder using builder-level detailing and common materials and framing. The Owners elected to use wood siding on the exterior for its visual warmth and renewable quality.
Empty Nester Residence / S27 originally appeared on ArchDaily, the most visited architecture website on 20 Feb 2015.
send to Twitter | Share on Facebook | What do you think about this?
Source:: http://feedproxy.google.com/~r/ArchDaily/~3/k-wlFBDbYs0/



















