Architects: PIQUE
Location: Bend, OR, USA
Contractor: High Timber Construction
Area: 4845.0 ft2
Year: 2013
Photographs: Alan Brandt

From the architect. Because the lot is flat, the building is kept to one level and features long rooflines to emphasize the horizontal lines of the landscape.

Deep overhangs on the west side of the site create outdoor rooms to capture western views and look out toward the golf course. With so much glass on the western façade, these overhangs are sized to appropriately manage solar heat gain according to the seasonal demands.

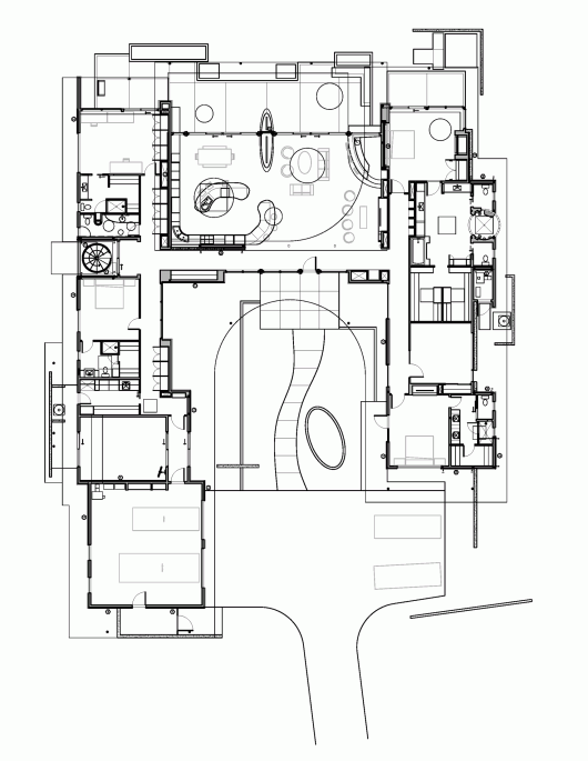
The floating roof plane has two large opposing arcs cut out to form an “H” shape. The connecting piece of the “H” hovers above the primary circulation and defines the thoroughfare between private wings of the house.

Board formed concrete planters and landscape walls act as buffers between the home and the golf course on the west side and between the home and the road on the east as well as help stitch the building form into the flat site. All colors on the building have been kept to a natural brownish tone to echo the colors and textures of the surrounding landscape.
Filler Residence / PIQUE originally appeared on ArchDaily, the most visited architecture website on 30 Apr 2015.
send to Twitter | Share on Facebook | What do you think about this?
Source:: http://feedproxy.google.com/~r/ArchDaily/~3/bFqQtiOBYMs/






















