Fonte de Angeão School / Miguel Marcelino

By AD Editorial Team

Architects: Miguel Marcelino
Location: 3840-171 Fonte de Angeão, Portugal
Area: 2885.0 sqm
Year: 2014
Photographs: José Campos

Collaborators: Pedro Dourado, José Figueiredo (acoustics), António Portugal (fire safety), Andreia Florentino (mural illustrations)
Structural Engineering: Betar (José Venâncio)
Plumbing Engineering: Ana Luísa Ferreira
Electrical Engineering: Fernando Carvalho Araújo
Mechanical Engineering: António Lopes do Rego
Design: FC Arquitectura Paisagista
General Contractor: Encobarra
Phases: 2008 (open competition, 1st prize), 2009-2010 (project), 2011-2014 (construction)
Gross Volume: 10.963 m3
Building Footprint: 2.885 m2
Site Area: 15.678 m2
Client: Municipality of Vagos

From the architect. The school setting allows a close relationship with nature, located in the countryside, the new primary school + kindergarten is surrounded by beautiful adult trees.

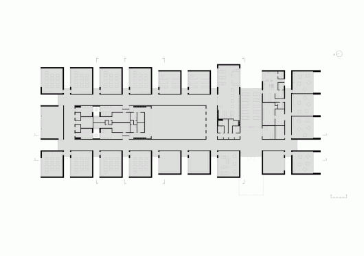
The proposal explores the relations between inside and outside through two systems that will define the spatial organization of the school: in the classrooms, an atmosphere of concentration is sought, so the large windows open to gaps, like private courtyards, providing controlled natural light and diagonal views to the surroundings. In the common zones the opposite happens: direct and frontal views, large perspective fields in all directions as well as plenty of natural light in the corridors.

There is no separation between structure, architecture and building services. The structure is at once architecture and its material is the actual finish. Pipes and cable trays are not hidden and most of ventilation and cooling is done through semi-passive systems.

Fonte de Angeão School / Miguel Marcelino © José Campos
Fonte de Angeão School / Miguel Marcelino © José Campos
Fonte de Angeão School / Miguel Marcelino © José Campos
Fonte de Angeão School / Miguel Marcelino © José Campos
Fonte de Angeão School / Miguel Marcelino © José Campos
Fonte de Angeão School / Miguel Marcelino © José Campos
Fonte de Angeão School / Miguel Marcelino © José Campos
Fonte de Angeão School / Miguel Marcelino © José Campos
Fonte de Angeão School / Miguel Marcelino © José Campos
Fonte de Angeão School / Miguel Marcelino © José Campos
Fonte de Angeão School / Miguel Marcelino Floor Plan
Fonte de Angeão School / Miguel Marcelino Section
Fonte de Angeão School / Miguel Marcelino Section
Fonte de Angeão School / Miguel Marcelino Section
Fonte de Angeão School / Miguel Marcelino Section
Fonte de Angeão School / Miguel Marcelino Section
Fonte de Angeão School / Miguel Marcelino Section

Source:: http://feedproxy.google.com/~r/ArchDaily/~3/chEo2VGil2E/

Subscribe
Notify of
guest
0 Comments
Inline Feedbacks
View all comments