Architects: John McAslan + Partners
Location: London, UK
Design Team: John McAslan + Partners, Max Fordham, Walsh Group, Stephen Cuddy, Anne Minors Performance Consultants, Westco Partnership
Area: 2500.0 sqm
Year: 2014
Photographs: Courtesy of John McAslan + Partners

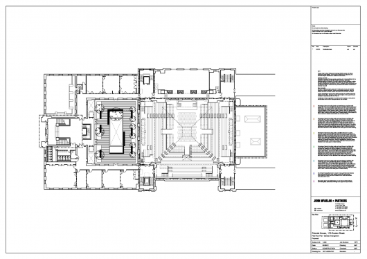
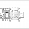
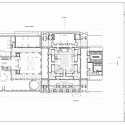
From the architect. Friends House lies within the Euston Road Conservation Area is the home of the Religious Society of Friends (Quakers) in Britain. The Grade II building by Hubert Lidbetter won the RIBA Bronze Medal in 1927. The central space is the Large Meeting House, seating 1,200. Designed for Yearly Meeting (the annual gathering of Quakers), it is still used for this purpose once a year.

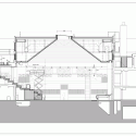
Prior to our refurbishment, views of the stage were compromised, seats were uncomfortable and the balcony areas largely unused as they deterred full participation in worship or in secular events. The new scheme now responds to the needs of the Society of Friends, those with disabilities and other users. Our vision was to create a place that expresses the values of the Quakers in Britain and transformed the Large Meeting House into a versatile, accessible and sustainable space.

The outreach and social programmes at Friends House offer a considerable resource to the local community of Camden and the Large Meeting House is hired out to student, community and political groups. The refurbished space removes an insensitively inserted ceiling, and the reconfiguration means that the space is now adaptable to suit a range of outreach work.

Quakers are committed to becoming a low-carbon, sustainable community and the new space is passively ventilated, making the building as sustainable as possible, considering its age.

The redesign creates a more coherent space, with unbroken raked seating now creating a more unified gathering space. The scheme facilitates use by those with disabilities – not just wheelchair users but also people with sight and hearing difficulties. The old ramped floor was non-DDA compliant, steps were uneven and cramped, and dated seating made access challenging, while the galleries were not accessible to all. Our design creates a larger flat-floored area at ground floor level with a flexible arrangement of the central area, making it possible to install cabaret type seating with tables, exhibition space, orchestral and dance events in the space as well as the conventional lecture-theatre layout.

One of the most striking elements of the reconfigured space is the dramatic roof-light, flooding the internal volume with daylight. The team was inspired by the work of James Turrell, an American artist (and lifelong Quaker) acclaimed for his work with light and space. We have developed the rooflight design with reference to Turrell’s work – the new glass rooflight above the Large Meeting House evokes a powerful interplay, drawing the sky down into the heart of the renewed space.

Our intention has been to create an atmosphere that reflects and expresses the values by which Quakers seek to live their lives based on equality, respect for the environment, justice, simplicity and peace. The Large Meeting House has been transformed into an inclusive congregation space that is calm and luminous.
Friends House / John McAslan + Partners originally appeared on ArchDaily, the most visited architecture website on 17 May 2015.
send to Twitter | Share on Facebook | What do you think about this?
Source:: http://feedproxy.google.com/~r/ArchDaily/~3/1KN32OayJWE/



















