Architects: Robert Edson Swain Architecture + Design
Location: Seattle, WA, USA
Area: 1125.0 ft2
Photographs: Ken Gutmaker , Courtesy of Robert Edson Swain Architecture + Design
Interiors Consultant: InteriorWorks
Engineering: IL Gross
General Contractor: Krekow Jennings
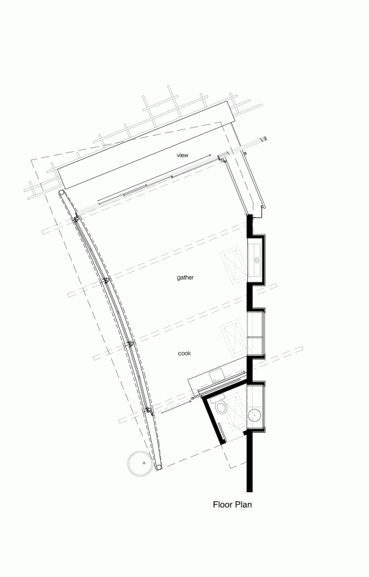
From the architect. Prospect and Refuge: A garden retreat that is hovering on the western slope of upper Queen Anne hill, and nested into the hillside. This retreat and gathering pavilion was imagined as a sculptural landscape element that could transform with the seasons and quickly change as the weather demands. Inspired by the impressive prospects of Elliott Bay, Magnolia and the Olympic Mountains to the west, the design delicately blends the pavilion into the client’s existing compound, protects the roots of a grand elm tree and respects neighbor’s views.

Selective architectural elements reference previous work we have designed and completed for these clients on the adjacent properties. Expressive concrete walls and rusted steel fencing extend from a new garage with photovoltaic panels, thus defining the edge of the site. These structures mark the transition between public alley and the private sanctuary within. The concrete walls draws occupants into the space, directing their view through the garden toward the pavilion at the western edge of the site.

Upon approach, the pavilions parabolic roof has large overhanging eaves providing a sense of threshold and compression at its eastern end and dramatically sweeps open to the west for expansive views and the benefits of the sun and connection to compound on the south. Once inside, the overhead plane is structured in reclaimed Douglas Fir beams and purlins, all supported by columns to the south and the concrete wall to the north. The views, polygonal floor plan and curved rusted steel wall to the south, makes the interior feel much larger than it’s exterior appears on site.

A harmonious place of refuge for the clients, the pavilion opens up to the textural landscape composed of rockeries, planting boxes with bold flowers, and native plantings meant to emulate the environment one would experience in the Olympic mountain range. Dynamic, operable glass walls and wood panels, on three sides completely disappear in warmer months by recessing into walls or sliding cantilevered out of view, or down into the south curved rusted steel wall.

The space transforms from closed and warm to an open literal integration of landscape — inside flows to outside! During the rainy northwest winters, these high-performance glass and wood panel door, along with a high-efficiency gas fireplace provide a dry escape within the gardens, extending the use of this space well into the off-season.

Garden Pavilion / Robert Edson Swain Architecture + Design originally appeared on ArchDaily, the most visited architecture website on 16 Mar 2015.
send to Twitter | Share on Facebook | What do you think about this?
Source:: http://feedproxy.google.com/~r/ArchDaily/~3/FyNm1yyHN1s/





















