Architects: atelier PRO
Location: Eykmanlaan 1200, 3571 KH Utrecht, Netherlands
Project Leader: Eelko Bemener
Project Architect: Dorte Kristensen, Lisette Plouvier, Evelien van Beek
Project Collaborators: Allard de Goeij, André van Veen, Constanze Knüpling
Area: 9860.0 sqm
Year: 2011
Photographs: John Lewis Marshall
From the architect.
The design assignment for the Gerrit Rietveld College consists of the new build of a secondary school with sporting facilities for about 1200 pupils, and for a smaller part of social and commercial facilities for the neighbourhood. The new build is situated in the leafy district of Tuindorp, at the eastern side of Utrecht. The plot is bordered by a public greenbelt, a through-road – the Eykmanlaan with a new parallel road – a slow traffic route, a newly to be developed residential district, and to the north at some distance, a railway.

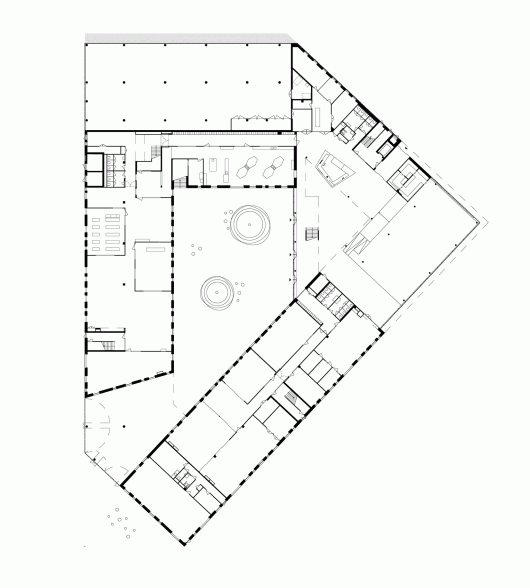
The basic shape of the design is a ‘continuous wheel’, with a courtyard square in the centre. This wheel is the ideal form for flexibility in the school, in which functions can ‘move on’. In addition, this shape makes it possible to realise a building on a limited plot that nevertheless provides much daylight and fresh air, and besides that leaves enough room for efficient and useful outdoor spaces for the students. In general, the building mass will be three floors high, but on the north side and the side of the Eykmanlaan it will be four floors high.

Despite the limited size of the plot, the plan offers a diverse range of outer spaces: an outdoor spot under the beautiful old chestnut trees, on the south side a square with a connection to the underpass leading to the courtyard, the court itself as the heart of the plot, and two terraces that can be reached from the court by stairs.

The main and evening entrances are situated at the de parallel road of the Eykmanlaan; this is also the parking zone and the public transport stop. There is direct entrance from the bicycle shed under the building at the northern side: the students’ entrance. In addition to these formal entrances, there is also an informal entrance, via the court. The design has been created in such a way that every entrance leads to the reception desk in the atrium: the heart of the college. This space is divided over three floors. Here, every domain can distinguish itself, and this is the place where all the various users meet each other. Directly situated at the court, in line with the atrium, is the auditorium, which also forms part of the heart.

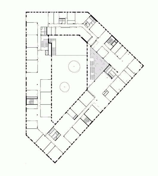
The specific domains Exact and Art & Culture are also situated on the ground floor, which, just as the domain Sport, can be closed off and hired out. On the first floor the more generic domains can be found such as Mankind & Society, Languages and HAVO/VWO 1,2 (senior general secondary education/pre-university education). These domains use the same sort of rooms and can mutually interchange. The domains Sport & Exercise and MAVO (general secondary education) are located on the second floor. All these domains can be reached from the atrium, the main stairwell, without crossing other domains.

To conclude: the design offers a high level of flexibility. This design provides building flexibility: expansion and shrinkage of the building; domain flexibility: expansion and shrinkage of the domains inside the building; space flexibility: changing the use of spaces and moving the walls; and functional flexibility: changing the function of the accommodation of, for instance, offices.

Gerrit Rietveld College / atelier PRO originally appeared on ArchDaily, the most visited architecture website on 22 Feb 2015.
send to Twitter | Share on Facebook | What do you think about this?
Source:: http://feedproxy.google.com/~r/ArchDaily/~3/AstBGOD9Ts0/




















