Architects: Stelle Lomont Rouhani Architects
Location: Amagansett, NY, USA
Design Team: Frederick Stelle, Viola Rouhani, Luca Campaiola, Esra Unaldi
Photographs: Matthew Carbone
General Contractor: ASUL Adaptable System for Universal Living
Structural Engineer: Struktur Studio
Mechanical Engineer: Kolb Mechanical Corp
Energy Consultant / Hers Rater: Glenn Lamay
Energy Consultant: Green Logic

From the architect. The owner of an existing Acorn house located in the woods in Amagansett, New York came to us with the request to design in its place a modern single-family residence with as much attention to energy use and sustainability as possible. With budget in mind we embarked on an exploration of to achieve this using conventional building methods, which quickly led to a dead end. Enter ASUL, a company from Arizona that specializes in a system based design methodology and a kit of parts site-built assembly process. Through this collaboration we were able to achieve the design at a much lower cost to the client. While the owner initially had hopes of employing roof mounted solar panels to generate electricity, and a geothermal system for cooling and heating, it soon became clear that neither the large forest canopy, nor the heavy clay content of the soil were going to make either feasible.

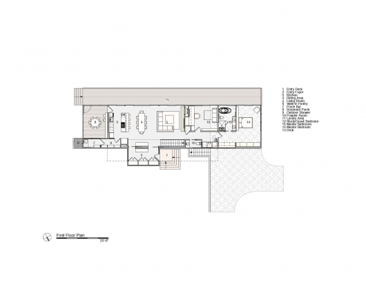
Maximizing the solar orientation, we turned to integrating passive solar design principles into the structure. A large overhang and the deciduous trees allow for natural shading in the summer. In the winter, the low sun penetrates glass with a very high solar heat gain coefficient, and heats the floor, which in and of itself acts as a thermal mass. The portion of the roof that does receive adequate sunlight receives solar hot water heaters. These panels tie into an advanced mechanical system to provide radiant heating throughout the house. The north wall is heavily insulated, with strategic openings used for cross ventilation. The combination of a high level of attention to insulation and air quality throughout give the house an Energy Star rating.



Narrative on Sustainability
A 3,000 square foot Energy Star rated single-family residence in the woods of Eastern Long Island takes advantage of the site and orientation to maximize passive solar energy use. The southern façade, with floor to ceiling glazing relies on a continuous overhang and the surrounding forest canopy for shading in summer time. In winter, the process reverses with the lower sun penetrating the glass and allowing the thick masonry floor to capture the heat. Roof mounted solar water panels tie into an advanced mechanical system and provide radiant heating throughout. This project is a collaboration with ASUL who have developed a locally adaptable site-built process combining a kit-of-parts assembly model with contemporary materials and labor management practices to achieve affordability.

Green Woods House / Stelle Lomont Rouhani Architects originally appeared on ArchDaily, the most visited architecture website on 24 Apr 2015.
send to Twitter | Share on Facebook | What do you think about this?
Source:: http://feedproxy.google.com/~r/ArchDaily/~3/eyW3M4KzHYM/



























