Holleb Residence / John Friedman Alice Kimm Architects

By AD Editorial Team

Architects: John Friedman Alice Kimm Architects
Location: , CA, USA
Architect In Charge: John Friedman
Project Team: Alice Kimm, Garrett Belmont
Area: 4000.0 ft2
Year: 2011
Photographs: Benny Chan / Fotoworks

From the architect. The Holleb Residence is a 4,000 square foot home for a family of four in the Ocean Park neighborhood of Santa Monica.

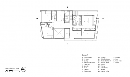
Its main organizing feature is a sculptural stair and second floor “cut-out” terrace that splits the house into front and back zones.

On the ground floor, the structure’s main entry separates the garage and guest room from the kitchen, dining, and living areas, which flow out into the back yard.

On the second floor, the terrace and atrium provide privacy between the parents’ suite and their children’s bedroom and play areas, which overlook the play spaces in the rear.

The residence differs from the firm’s other houses in its inclusion of many smaller spaces and rooms, all intended for specific uses by its inhabitants, but all held together by the circulation system and the centrally-located double-height living room.

Holleb Residence / John Friedman Alice Kimm Architects © Benny Chan / Fotoworks
Holleb Residence / John Friedman Alice Kimm Architects © Benny Chan / Fotoworks
Holleb Residence / John Friedman Alice Kimm Architects © Benny Chan / Fotoworks
Holleb Residence / John Friedman Alice Kimm Architects © Benny Chan / Fotoworks
Holleb Residence / John Friedman Alice Kimm Architects © Benny Chan / Fotoworks
Holleb Residence / John Friedman Alice Kimm Architects © Benny Chan / Fotoworks
Holleb Residence / John Friedman Alice Kimm Architects © Benny Chan / Fotoworks
Holleb Residence / John Friedman Alice Kimm Architects © Benny Chan / Fotoworks
Holleb Residence / John Friedman Alice Kimm Architects © Benny Chan / Fotoworks
Holleb Residence / John Friedman Alice Kimm Architects © Benny Chan / Fotoworks
Holleb Residence / John Friedman Alice Kimm Architects First Floor Plan
Holleb Residence / John Friedman Alice Kimm Architects Second Floor Plan
Holleb Residence / John Friedman Alice Kimm Architects Section AA
Holleb Residence / John Friedman Alice Kimm Architects Section BB
Holleb Residence / John Friedman Alice Kimm Architects Axonometric

Source:: http://feedproxy.google.com/~r/ArchDaily/~3/MartT1QHRVY/

Subscribe
Notify of
guest
0 Comments
Inline Feedbacks
View all comments