Architects: Luis Peixoto
Location: Póvoa do Varzim, 4490-520 Póvoa de Varzim, Portugal
Project Area: 650.0 m2
Project Year: 2013
Photographs: Armenio Texeira
Collaborators: Susana Isabel Baptista Monteiro
Construction: Barreirinhos Constructora Lda
Technical Director: Ing. Paulo Baptista
Structures: Ing. Marco Costa, Ing. Mario Pimentel
Plumbing: Ing. Marco Costa
Electrical: Ing. Maçana
Hvac: Ing. Pedro Marco Araújo
Client: Dra. Sameiro Barreirinho
Site Area: 5.850 m²
Cost: 600.000.00 €

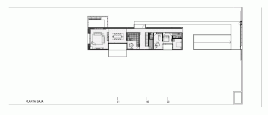
From the architect. In a time of return to its origins, a family that prospered in the city decided to return to its homeland and family history.

On farmlands, they built their home on the basis of the scale of a large family. This home reflects their personality in a mixture of breaking with city culture, while ensuring an intermediate space between classical and bucolic, between exterior and interior, where the covered space is appreciated without being seen.

From this commission arises the issue of excavation in an abstract way, in different courtyards as to their form and degree of sun exposure, symmetrical and proportional to each other.

This family, a couple of physicians with a son who currently aspires to be a soccer player of FC Porto is reflected on the outdoors. On one side the typical grass of a soccer field with a goal, and on the other side, a transition to a crop field. This house describes the change of environment of the territory, the migration of families and their expectations for the future.

House in Póvoa / Luis Peixoto originally appeared on ArchDaily, the most visited architecture website on 20 Jan 2015.
send to Twitter | Share on Facebook | What do you think about this?
Source:: http://feedproxy.google.com/~r/ArchDaily/~3/pvTZXBQEAI8/



























