House in Vilnius / D_Style Vilnius

By AD Editorial Team

Architects: D_Style Vilnius
Location: , Lithuania
Architects In Charge: Antanas Dominas, Tomas Jasiulis
Area: 235.0 sqm
Year: 2014
Photographs: DGFotografija

From the architect. Interior salon Distyle has completed installation of individual residential home. Distyle, in collaboration with its partners, supervised all phases of home construction from design to home furnishing and placing keys to a customer.

Architecture: a two-storey detached dwelling- house, wooden facade, the interior layout is functional, adapted to live in a family with children. A comfortable dwelling- house is connected with monolithic garage using a porch (unheated transitional room).

The garage has wooden boards imitation in the concrete walls. The sitting room of the house provides access to a wooden outdoor terrace (architect Antanas Dominas, designer Audrone Dominaite).

Interior: modern, functional, minimalistic but particularly comfortable (designer Tomas Jasiulis). The range of colors is bright, most of furniture manufacturers are Italian, lighting and interior design, all of which you can order in the interior salon Distyle. A part of non-traditional furniture and interior solutions are made in Lithuania.

House in Vilnius  / D_Style Vilnius © DGFotografija
House in Vilnius  / D_Style Vilnius © DGFotografija
House in Vilnius  / D_Style Vilnius © DGFotografija
House in Vilnius  / D_Style Vilnius © DGFotografija
House in Vilnius  / D_Style Vilnius © DGFotografija
House in Vilnius  / D_Style Vilnius © DGFotografija
House in Vilnius  / D_Style Vilnius © DGFotografija
House in Vilnius  / D_Style Vilnius © DGFotografija
House in Vilnius  / D_Style Vilnius © DGFotografija
House in Vilnius  / D_Style Vilnius © DGFotografija
House in Vilnius  / D_Style Vilnius © DGFotografija
House in Vilnius  / D_Style Vilnius © DGFotografija
House in Vilnius  / D_Style Vilnius © DGFotografija
House in Vilnius  / D_Style Vilnius © DGFotografija
House in Vilnius  / D_Style Vilnius © DGFotografija
House in Vilnius  / D_Style Vilnius © DGFotografija
House in Vilnius  / D_Style Vilnius © DGFotografija
House in Vilnius  / D_Style Vilnius © DGFotografija
House in Vilnius  / D_Style Vilnius © DGFotografija
House in Vilnius  / D_Style Vilnius © DGFotografija
House in Vilnius  / D_Style Vilnius © DGFotografija
House in Vilnius  / D_Style Vilnius © DGFotografija
House in Vilnius  / D_Style Vilnius © DGFotografija
House in Vilnius  / D_Style Vilnius © DGFotografija
House in Vilnius  / D_Style Vilnius © DGFotografija
House in Vilnius  / D_Style Vilnius © DGFotografija
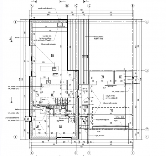
House in Vilnius  / D_Style Vilnius First Floor Plan
House in Vilnius  / D_Style Vilnius Second Floor Plan
House in Vilnius  / D_Style Vilnius Elevation 1
House in Vilnius  / D_Style Vilnius Elevation 2
House in Vilnius  / D_Style Vilnius Elevation 3
House in Vilnius  / D_Style Vilnius Elevation 4
House in Vilnius  / D_Style Vilnius Elevation 5
House in Vilnius  / D_Style Vilnius Section 1
House in Vilnius  / D_Style Vilnius Section 2
House in Vilnius  / D_Style Vilnius Section 3
House in Vilnius  / D_Style Vilnius Section 4

Source:: http://feedproxy.google.com/~r/ArchDaily/~3/GF_ihAQMdDo/

Subscribe
Notify of
guest
0 Comments
Inline Feedbacks
View all comments