Architects: D_Style Vilnius
Location: Vilnius Map, Lithuania
Architects In Charge: Antanas Dominas, Tomas Jasiulis
Area: 235.0 sqm
Year: 2014
Photographs: DGFotografija

From the architect. Interior salon Distyle has completed installation of individual residential home. Distyle, in collaboration with its partners, supervised all phases of home construction from design to home furnishing and placing keys to a customer.


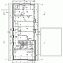
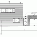
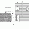
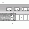
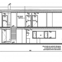
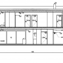
Architecture: a two-storey detached dwelling- house, wooden facade, the interior layout is functional, adapted to live in a family with children. A comfortable dwelling- house is connected with monolithic garage using a porch (unheated transitional room).


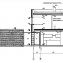
The garage has wooden boards imitation in the concrete walls. The sitting room of the house provides access to a wooden outdoor terrace (architect Antanas Dominas, designer Audrone Dominaite).

Interior: modern, functional, minimalistic but particularly comfortable (designer Tomas Jasiulis). The range of colors is bright, most of furniture manufacturers are Italian, lighting and interior design, all of which you can order in the interior salon Distyle. A part of non-traditional furniture and interior solutions are made in Lithuania.

House in Vilnius / D_Style Vilnius originally appeared on ArchDaily, the most visited architecture website on 06 Mar 2015.
send to Twitter | Share on Facebook | What do you think about this?
Source:: http://feedproxy.google.com/~r/ArchDaily/~3/GF_ihAQMdDo/









































