Architects: Abraham Cota Paredes Arquitectos
Location: Calle los Robles, Zapopan, Jal., Mexico
Project Area: 229.0 m2
Project Year: 2014
Photographs: Onnis Luque
Collaborators: Álvaro Beruben Galván, ESTUDIO HIDALGO
Construction: Abraham Cota Paredes Arquitectos
Structural Engineering: ROMVIR ingeniería

From the architect. The house expresses the search for an introspective architecture, an architecture that envelopes itself, where privacy is the best gift.

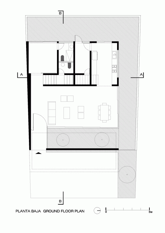
The project is an evolution of the concept of the screen wall, an idea arising from the exercise of homes in gated communities, where the search for privacy and wealth of interior space, cause a mechanism of introspection. The site, between party walls, is located in the foothills of the spring forest in the city of Guadalajara Mexico. The distribution reflects the direction of the terrain: west-east.

The living-dining spaces are located to the east, to get more sunlight and morning warmth through large windows, and the services are located to the west and north.

To provide privacy, a concrete screen wall prevents us overlooking the street and garages, creating an indoor garden that becomes the heart of the house. Thus producing a kind of open pavilion surrounded by green. The staircase is hidden behind walls, dividing public and private areas.

The screen wall serves as the primary structural element of the house. Thanks to the design work of purification in the structural design, we could have a clean design, devoid of vertical elements, cleaning the space and at the same time with the effect that most of the weight of the house rests solely on the right end of the concrete wall.

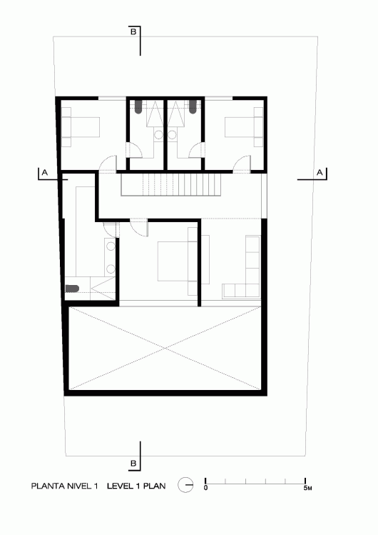
Upstairs, the perimeter walls extend towards the front, cantilevering over the garden and the garage, locking the house in itself, forcing the user to look up at the sky and discover the relationship with the garden on the ground floor. The house catches you from when you cross the threshold of the screen wall floating on the garage, you are surrounded by an architecture that seems to envelop you and make you discover it.

The formal result appears to be two overlapping parallelepipeds with the necessary openings to frame the views. The union of the two parts in elevation seeks the golden ratio. A thin groove divides the concrete wall into two, right where the square of the golden rectangle is delimited.

House to See the Sky / Abraham Cota Paredes Arquitectos originally appeared on ArchDaily, the most visited architecture website on 04 May 2015.
send to Twitter | Share on Facebook | What do you think about this?
Source:: http://feedproxy.google.com/~r/ArchDaily/~3/trkVOl23Zl8/































