Architects: KRIS YAO | ARTECH
Location: Taipei, Taiwan
Area: 51881.0 sqm
Year: 2014
Photographs: Jeffrey Cheng
Project Team: Hua-Yi Chang, Yi-Lin Chou, Kuo-Lung Lee, Iven Lai, Ching-Che Huang, Jean Wang, Jen-Ying Kuo, Yvonne Lee, Jun-Ren Chou, Calvin Chen, Jeff Lai, Sam Chu, Michael Lin, David Chen
Structural: King – Le Chang & Associates
Mep: Parsons Brinckerhoff International, Inc., Taiwan Branch
Landscape : PLACEMEDIA, Landscape Architects
Lighting: Chroma 33 Architectural Lighting Design Inc
Contractor: Li Jin Engineering Co., Ltd.

From the architect. An east-west facing building utilizing double-height sky gardens and external structure frames as shading devices to achieve “green”.

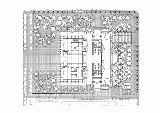
The Hua Nan Bank Headquarters is located in the busy Xinyi District alongside several other financial buildings. Contrary to the sustainable design, the city planning for this main business district in Taipei has most of its lots facing East and West. In a culture fixated with having significant building facades towards the “front”, which would be east or west in this case, this posed great challenges in designing a green building.

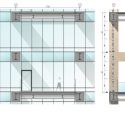
The 154.5 meters tall HunNan headquarters is comprised of three-story podium and twenty –seven-story office tower, with the main entrance and long side of the rectilinear plan facing the west. Detached from the exterior curtainwall, the peripheral structure is pushed out as an exoskeleton system, allowing the spaces in between for balconies, which also act as sun-shading devices to enhance sustainability in design.

This design feature allows the interior space to be column-free, with a clean and smooth window line around it for flexibility in space planning. On the front center bay of the tower, a series of double-height “sky gardens” are stacked all the way to the top of the tower.

They make for casual meeting and relaxing spaces for the office staff, and serve as the buffer zones for reducing heat-gain from the west façade also. Over-sized ceiling fans are installed in these spaces to achieve the thermal destratification effect.

With additional energy saving strategies applied throughout the building system, this bank headquarters has acquired a LEED Gold rating in sustainable design.
Hua Nan Bank Headquarters / KRIS YAO | ARTECH originally appeared on ArchDaily, the most visited architecture website on 26 Mar 2015.
send to Twitter | Share on Facebook | What do you think about this?
Source:: http://feedproxy.google.com/~r/ArchDaily/~3/ap4Uk8m15r4/
























