Architects: NatureHumaine
Location: Chemin de la Côte-des-Neiges, Montréal, QC, Canada
Area: 2000.0 ft2
Year: 2014
Photographs: Adrien Williams

From the architect. The client wants to transform the last two levels of a building to create living spaces for her two athletically inclined children, who are now grown adults. The primary goal is to create a shared living space in which all utilitarian functions are shared but which still allows each person to have privacy.

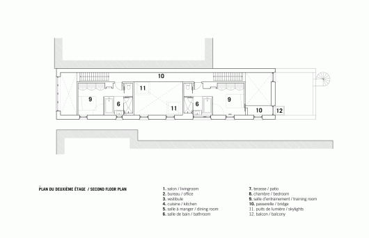
The architectural concept consists in removing the floor currently separating the two levels to create a wide-open space in which two large boxes appear to float in mid-air. These suspended boxes, adorned with unfinished plywood panels, each contain a bedroom and a bathroom.

This configuration creates three gaps, each being two floors high; the centre gap becomes a physical exercise room with a pair of gymnastics rings. The whole structure is connected lengthwise by a block that is painted black; the block accommodates different services, including stairways, a shower room and part of the kitchen.

A large island with unfinished wood painted white delineates the kitchen space, with sliding lacquered bookshelves underneath the wooden boxes.

In Suspension / NatureHumaine originally appeared on ArchDaily, the most visited architecture website on 27 May 2015.
send to Twitter | Share on Facebook | What do you think about this?
Source:: http://feedproxy.google.com/~r/ArchDaily/~3/euuXLxMFiAg/



























