Kahrizak Residential Project / CAAT Studio

By Fabian Cifuentes

Architects: CAAT Studio
Location: , Tehran, Iran
Architect In Charge: Mahdi Kamboozia
Area: 1660.0 sqm
Year: 2015
Photographs: Parham Taghiof, Ashkan Radnia

Design Collaborator: Helena Ghanbari
Assistant: Alireza Movahedi

From the architect. When we were offered this project, there were factors such as the location of the project, the problems in the region, the poverty the residents lived in and the Client’s determination to improve the living conditions in Kahrizak that motivated us to find the best solutions possible to build accommodations appropriate to the region’s climate and residents’ culture so as to set an typology of design and construction in the area. Since there is a myth in our society that good architecture is the immediate result of good money supply so it belongs to the rich only, the main goal of this project was designing a construction enjoying quality and providing affordability. This goal could be achieved only through the effective interaction and cooperation between the architect, the Client and the collaborators.

There is a constant historical principle in Iranian architecture: the richness in details in coexistence with the representation of simplicity in overall scale which finally ends into merging with the context and matching to their functions. In Iranian traditional architecture users built their houses in a sustainable and climatic manner. This architectural considerations led into creation of a variety of typologies in different climatic zones of the country. We decided to be loyal to this principle in our project.

The choice of material was a significant parameter in this project mainly because we had to choose something affordable and easy to freight to the site. As a result, we considered clay blocks which were produced in a factory nearby and this meant a considerable decrease in the freight charge of the materials. The modules were constructed with bricks and we tried to find a suitable material for the module frames. The least expensive material that gave us the ability to create our desired sense of space was concrete. This way, we could reduce the cost of the project to its minimum. We used this reduction of cost to create the high quality interior spaces.

After designing the project we started to train regional workmen. To make sure that they are skilled enough to arrange final modules we ran some test modules before the final construction phase started. The client’s patience, understanding and his trust helped the process.

The close collaboration between architect and the client caused the progress of this project in a half forgotten district and at last it reached residents satisfaction. The units were sold-out during the construction phase with the same price of a finished building in the neighborhood while there was so many completed buildings left unsold. This way we achieved the client`s goal to gain profit of his project. That was what we all searching for; residents’ satisfaction, the clients’ benefit; A proper architecture from architect`s point of view and a good resume for constructors. Thus everyone who was somehow involved in the project was given what he/she tried to achieve.

Application of brick products:

As it may be seen in the project images we used clay blocks in the façade in a way that cover some parts of the terraces according to the reasons mentioned above.

Brick modules’ designs are based on Iranian geometrical patterns; each module was designed in relation with the function of the space behind it. Having variety in brick modules they are coherent and homophonic. That’s how it resulted in a smooth facade to represent both Iranian brick architecture and the essence of residential. In addition this geometry is concrete for local workmen and thus it facilitates the construction process. The geometry is also present in traditional residential architecture of desert areas of Iran.

Kahrizak Residential Project / CAAT Studio © Parham Taghiof
Kahrizak Residential Project / CAAT Studio © Parham Taghiof
Kahrizak Residential Project / CAAT Studio © Parham Taghiof
Kahrizak Residential Project / CAAT Studio © Parham Taghiof
Kahrizak Residential Project / CAAT Studio © Parham Taghiof
Kahrizak Residential Project / CAAT Studio © Ashkan Radnia
Kahrizak Residential Project / CAAT Studio © Parham Taghiof
Kahrizak Residential Project / CAAT Studio © Parham Taghiof
Kahrizak Residential Project / CAAT Studio © Parham Taghiof
Kahrizak Residential Project / CAAT Studio © Parham Taghiof
Kahrizak Residential Project / CAAT Studio © Ashkan Radnia
Kahrizak Residential Project / CAAT Studio © Parham Taghiof
Kahrizak Residential Project / CAAT Studio © Parham Taghiof
Kahrizak Residential Project / CAAT Studio © Parham Taghiof
Kahrizak Residential Project / CAAT Studio © Ashkan Radnia
Kahrizak Residential Project / CAAT Studio © Parham Taghiof
Kahrizak Residential Project / CAAT Studio Site Plan
Kahrizak Residential Project / CAAT Studio Section
Kahrizak Residential Project / CAAT Studio Section
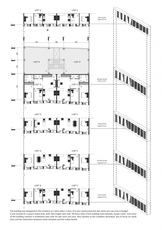
Kahrizak Residential Project / CAAT Studio Diagram
Kahrizak Residential Project / CAAT Studio Diagram
Kahrizak Residential Project / CAAT Studio Diagram
Kahrizak Residential Project / CAAT Studio Diagram
Kahrizak Residential Project / CAAT Studio Diagram
Kahrizak Residential Project / CAAT Studio Diagram

Source:: http://feedproxy.google.com/~r/ArchDaily/~3/kLeA5ljUY-A/

Subscribe
Notify of
guest
0 Comments
Inline Feedbacks
View all comments