Architects: Samoo Architects & Engineers
Location: Daegu, South Korea
Area: 64931.0 sqm
Year: 2014
Photographs: Young Chae Park
From the architect. As one of the most prominent corporations in Daegu, the Korea Gas Corporation headquarters building was designed with the concept of ‘ECO VESSEL’, projecting a clean & efficient image. Considering the project location with 3 hills surrounding the site, the building was designed with low-profiles to harmonize with the surrounding nature.
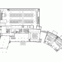
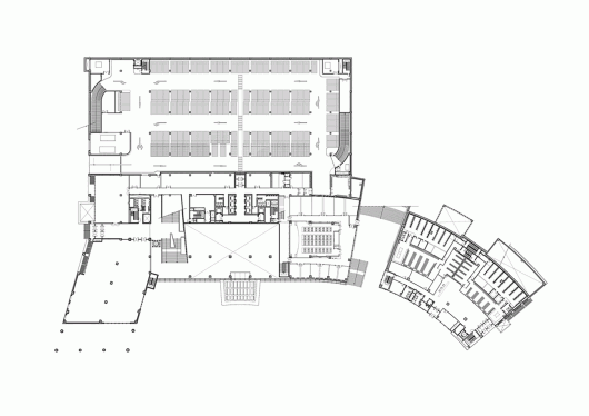
The design team focused on creating a headquarters building that could bring unity among its users, nature, and the local citizens. Various facilities including meeting zones and auditoriums were located independently in the podium with linkages among the facilities for maximum accessibilities.
Also, a plaza located in front of the building as well as an open lobby welcomes visitors and local citizens with enough space to host events and exhibitions.
The office tower was designed to represent the flow of energies creating a strong dynamic profile while integrating outdoor terraces which links the flow of greeneries from the ground to the top of the building. Outdoor terraces located on each floor of the tower allows users to easily access the terraces and to feel splendid nature.
Designed as a landmark of Daegu, the new headquarters building integrates various sustainable technologies including BIPV, PV, geo-thermal heating, natural ventilation and others to realize a truly sustainable building.
Korea Gas Corporation Headquarters / Samoo Architects & Engineers originally appeared on ArchDaily, the most visited architecture website on 01 Apr 2015.
send to Twitter | Share on Facebook | What do you think about this?
Source:: http://feedproxy.google.com/~r/ArchDaily/~3/3fZWoyLcLrk/


















