Architects: schöne räume architektur innenarchitektur
Location: Gewerbegebiet Nördlicher Ortsrand I, Boschstraße 7, 63843 Niedernberg, Germany
Architects In Charge: Ralf Böckle, Christof Adam, Christian Koch
Area: 602.0 sqm
Year: 2014
Photographs: Oliver Tamagnini

From the architect. Place of creativity: Working in modern trend laboratories
Architectural office schöne räume develops creative spaces for Gries Deco Company GmbH

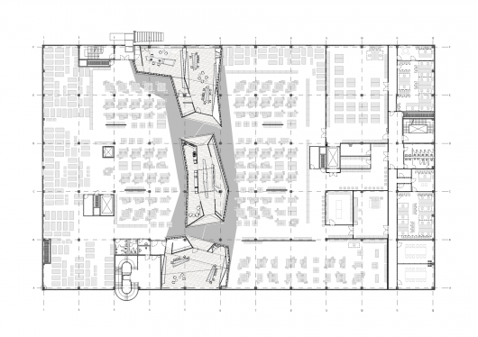
It is without saying that bright and spacious rooms, application of specific materials, in short, a modern working environment promotes creativity. How floors can be transformed into rooms of creativity, demonstrates the re-construction of a former logistics centre in Niedernberg. The intention of the client, Gries Deco Company GmbH, was to establish a generous and spacious creativity area. The new area should consist of trend-development labs for the company’s brand names DEPOT and ipuro, office premises and separate meeting rooms.

“We intended to counteract the optical appearance of the headquarters, characterized by steel and concrete, by using lively and cosy material in oder to match the functional skeleton construction made of reinforced concrete with modern and individualistic design elements”, commented Ralf Böckle, owner of schöne räume, the design approach. By following this idea, three volume structures are to form an ensemble within the central axis of the 2nd floor. The structures divide the total area of 3,250 m² into two design areas and comprise two creative labs at the northern and southern end, respectively, as well as an ID:pool in the centre. The outer wall of the creative labs were covered by pure wooden boards that form a relief due to the distinctive thickness of the boards.

Open space for thinking
The creative labs of one the biggest production centres for living accessories and deco products do now offer ample space for development of new ideas for future seasonal collections. Development and realisation of creative labs became possible upon replacement of the existing distribution centre in the Bavarian city of Niedernberg in 2013 by a new logistics centre, upon availability of ample space and the client’s intention to use the vacant building for other purposes. Besides optimum and efficient use of energy, re-construction focused on promoting creativity processes and development of successful marketing strategies.
“The modern working environment consisting of distinctive, specifically designed standing tables like ‘Folding 888′, several seating opportunities, work stations and separate meeting rooms providing sufficient room for brain-storming sessions of a few people as well as meetings for presentations”, stated architects Christof Adam and Christian Koch, in charge of project management. Traditional and modern creative techniques do meet at all three areas. There are work places for digital research, LED screens and magnetic walls for visualisation of themes.

Attraction of inner life: materials and light
The walls and the ceiling, with its white surface painting, form an ideal background for creative thinking. The office area is some 132 m² in size. Besides a wall-integrated hanging storage system made of steel for mood boards there is a computerized workstation. In addition, a multimedia system consisting of projector, monitor and acoustic system have been installed. The sound quality is regulated through a specially designed ceiling. The inner life of the three structures, like a laboratory, stands out in bright white paint.

The wooden panel covering the outer walls is reflected by the parquet floor of the labs, the entryways, in the form of cones, intensify the attractiveness of the inner area. Significant by design are the felt-covered sideboards and tables that structure the room and promote the exchange of information among personnel. In addition, the staff can focus on their work in separate working niches.

ID:pool as centre point
The ID:pool is located in the centre of the creativity design area, which also accommodates a comprehensive collection of distinctive materials and serves as inspiration while planning new products. The open construction is divided into three different areas. In the centre, the main hall is equipped with the standing table ‘Folding 888′ and a lumen ceiling divided into three sections. This approach focuses attention to the hall as being the centre of the lab. Filtered by the reticle, the eastern section is complemented by the bookshelf. By deploying the reticle, daily actual news and recent trends can be sorted and displayed. Behind the dividing wall, there is a kitchen with a lounge area.

KreativLABs / schöne räume architektur innenarchitektur originally appeared on ArchDaily, the most visited architecture website on 16 May 2015.
send to Twitter | Share on Facebook | What do you think about this?
Source:: http://feedproxy.google.com/~r/ArchDaily/~3/XwSh_tb8Lhk/


























