Architects: Barq
Location: Tomás A. Le Breton 4482, Buenos Aires, Ciudad Autónoma de Buenos Aires, Argentina
Project Team: Julián Berdichevsky, Mariano Varela, Magdalena Real, Carla Selva, Daniela Devesa
Structures: Sebastián Berdichevsky
Project Area: 2000.0 m2
Project Year: 2014
Photographs: Federico Kulekdjian
From the architect. The building is located on a quiet street in the neighborhood of Villa Urquiza, limited by edges that generate two rail lines with a focus on Coghlan and Drago stations.

It is a thriving neighborhood that demolitions for the construction of the highway could not make disappear, characterized by its diverse typologies – from old houses of one and two floors to high apartment buildings – quiet, tree-lined streets next to rapid transit and fluid avenues. The building responds to the environment with a distinctly contemporary appearance.

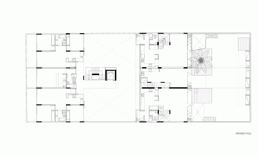
The proposal has its starting point in another building by our office built on the same street, just 50 meters away. Taking it as a starting point, Le Breton II, as we like to call it, has certain typologies of its predecessor and also incorporates 3 types of houses with gardens of different areas. They are grouped into two blocks divided by a large central courtyard with an open circulation core. The apartments overlooking the street are studio, two and three bedroom units, and two penthouses with terrace. The block to the back has 3 houses on the ground floor with their own garden and a penthouse on the third floor with a large terrace and pool. These typologies are trying to maintain the character of the houses in the neighborhood, but within the comforts of a collective housing complex.



The materials and finishes try to reinforce the idea of the structure as language: the structural concrete is exposed, unpainted, appealing to different types of formwork for light to highlight the different finishes. Large glass panels from floor to ceiling with aluminum frames, interior and exterior black plastering make up the finishes. The incorporation of wood as an exterior language of the rear block, gives the building a particular and modern warmth, in contrast to the block in front, creating a friendly dialogue between them and the surrounding environment.

LeBreton 4482 Building / Barq originally appeared on ArchDaily, the most visited architecture website on 27 Apr 2015.
send to Twitter | Share on Facebook | What do you think about this?
Source:: http://feedproxy.google.com/~r/ArchDaily/~3/C-wuKbL5rSw/




























