Architects: Aedes Studio
Location: Bulgaria
Year: 2014
Photographs: Aedes Studio

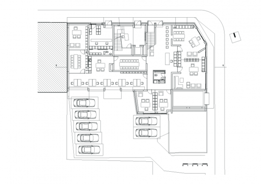
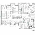
From the architect. “Liubata” is a residential building situated in Lozenets neighborhood, a location which has been chaotically overbuilt during the 90-ies. The abundance of shapes and colors in such a small area demanded a pause, an approach different from the solid volume.

The project turns back to the sense of natural beauty in the Old Bulgarian building tradition. Following the example of the typical barn, with its heavy stone ground floor and light wooden volume on top, the traditional house readapts this contrasting concept.

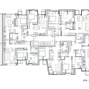
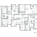
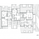
Reminiscent of the airy old barns, the new buildingdelicately enters this overbuilt scenario. In order to decrease the heaviness of the wooden volume and at the same time, to exalt the sense of individuality ofits inhabitants, it is divided into four components, each variablein size. They are separated by glass stripessagging back from the cantilever to the line ofthe stone groundfloor following both facadesand the roof.

Seen from the street the building gives an impression of a row of houses, each coated with wooden lamellas, varying in size and direction. The ground floor, covered in the same stone as the surrounding pavement, is separated from the four wooden volumes by a glass stripe. It gives the sense of the volumes levitating above the stone, effect which is most evident at night when the stripe emits light.

Driven by its sensation of natural beauty and tradition, “Liubata” manages to find balance, a moment of peace within the dynamic environment where it is located.
Liubata / Aedes Studio originally appeared on ArchDaily, the most visited architecture website on 20 Mar 2015.
send to Twitter | Share on Facebook | What do you think about this?
Source:: http://feedproxy.google.com/~r/ArchDaily/~3/qgeaJNRQ5_M/




































