Architects: ADH
Location: Bordeaux, France
Architects In Charge: Benoîte Doazan, Nicolas Novello, Stéphane Hirschberger
Area: 1000.0 sqm
Year: 2012
Photographs: Courtesy of ADH
Acoustics Expert: Altia
Light Conception: Pixelum
Economist: Cetab
Scenographer: Architecture & Technique
Project Management: Adh (Doazan+Hirschberger & Associés)

From the architect. A few steps away from St Jean Station, the Maison des Danses strengthens the artistic and educational vocation of the neighborhood, along with the Conservatory of Bordeaux and the School of Fine Arts.

The “Maisons des Danses” is part of Bordeaux’s traditional spirit, and offers cultural facilities open to choreography and the world.

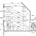
This project takes up twoold shop spaces on thecorner of rue Fieffé and rue Eugène Leroy. The design, 3dance studios, changing rooms and a few offices, will neatly fit into the allotted volume.

The spaces are organized in a very straightforward way:
-on the east side, the studios are superimposed for the ground floor to the roof.
-on the westside side, the” annexes »/extensions are organized on half levels: the reception, the faculty offices, the student recreation center, the changing rooms, the restrooms.
-in the center is a service gallery, bright and comfortable.

One of the goals of the project, ” dancing with the city », is achieved by a special care given to the light and the facades, with most notably the use of ” box-windows » and shed roofs, which, for the two top studios, open on the rooftops and the sky.

On the south side, the building presents a more technical facade: photovoltaic panels and solar sensors for the ECS, which, along with other devices, shares in the sustainable design of the other equipment.

A thin wooden sheath envelops the north facade and highlights the presence of this singular house within the neighborhood.
Maison Des Danses / ADH originally appeared on ArchDaily, the most visited architecture website on 12 Feb 2015.
send to Twitter | Share on Facebook | What do you think about this?
Source:: http://feedproxy.google.com/~r/ArchDaily/~3/YLSyrU5hpUU/



























