Architects: Paz Gersh Architects
Location: Tel Aviv-Yafo, Israel
Architect In Charge: Zvi Gersh, Evyatar Cohen
Interior Design: Michal Keinan Sinai. Interior Arch
Area: 450.0 sqm
Year: 2015
Photographs: Amit Giron

From the architect. Concrete Construction, Aluminum window frame, Parquet wood floors, Teak wooden deck, Metal staircase handrails, Stucco coating and Teak Louver Panels on elevations.

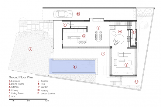
In planning the villa, the main design concept was designing modern house L shape house around a pool and three various garden areas. The program was planned for a family with children with a large master suite. On ground floor an open plan provides public spaces such as: kitchen, dining, library, and living room around the pool area. By planning the bedrooms in the upper and lower levels of the house the ground floor becomes a transitional space between the master suite and the lower bedrooms.

The plan integrates 3 Mediterranean garden types, these gardens vary in type and location around the villa. On the upper level the master suite opens to a roof garden. On the roof steel containers hold the green area thus becoming an object in the garden. On ground level, cultivated fauna acts as a back drop towards the eucalyptus trees. At the lower level a private courtyard is situated next to the bedrooms..

In designing of the exterior elevations, a framing element is used to capture a segment of the landscape scenery.

The house design re-examines the boundaries of interior space on the ground level by the use of natural light and transparent glass elevations towards the south and west directions. These glass elevations on the ground floor are used as dynamic partitions, while the upper wooden louvers allow filtered sunlight into the master suite.

The design of the facades evolved through an analysis of precise proportions, these proportions can be seen through the entire house. The house was planned while searching for a contemporary architectural language, both using local references with the combination architectural Mediterranean elements.

Mediterranean Villa / Paz Gersh Architects originally appeared on ArchDaily, the most visited architecture website on 23 Feb 2015.
send to Twitter | Share on Facebook | What do you think about this?
Source:: http://feedproxy.google.com/~r/ArchDaily/~3/jIf1nTKWVGg/
























