Architects: Eduardo Souto de Moura
Location: Sabrosa, Portugal
Collaborators: Pedro Guedes de Oliveira, José Carlos Mariano, Tiago Coelho, Isabel Neves, Diogo Guimarães
Project Area: 1680.0 m2
Project Year: 2011
Photographs: Luis Ferreira Alves
Building Services: Segropol e Get (AVAC)
Client: Câmara Municipal de Sabrosa
Site Area: 8600 m²
Budget: aprox. 3 million Euros

From the architect. The “Miguel Torga Space” cultural center proposes, among other activities, to study and disseminate the poetic and literary work of Miguel Torga.

The schist walls (characteristic elements of this area), draw the boundaries of the building and define its image.

The building is implanted south of old fair grounds and has two entrances, public (east) and services (west), set by the mismatch of the walls. There is also a direct entrance to the cafeteria (west), through a large glass door, allowing an independent program.

Taking advantage of the slope of the ground, the walls were extended to the northeast, framing the market area. 18 trees modulate this space that serves to as a market most days, or as a parking lot for the Cultural Center.

The building has two floors (a ground floor and one floor below ground level), a site area of approximately 1315 m2, an outdoor parking area / market of approximately 3115 m2 in a variable height, and two walls that configure it, between 1 meter (parking / fair) and 5.5 meters (building).

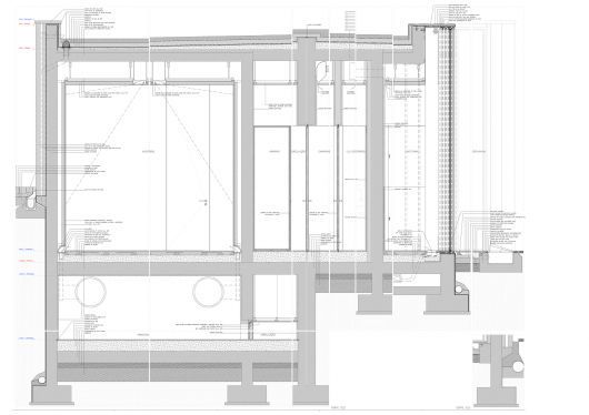
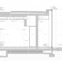
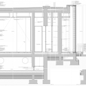
Constructively the building consists of a reinforced concrete structure externally clad in schist pillars of Foz-Coa. Structural interior walls are made of concrete and partitions are made of brick masonry; on this system are set up the final finishes. The roof is coated with a layer of schist cobble.

Miguel Torga Space / Eduardo Souto de Moura originally appeared on ArchDaily, the most visited architecture website on 06 Jun 2015.
send to Twitter | Share on Facebook | What do you think about this?
Source:: http://feedproxy.google.com/~r/ArchDaily/~3/s6cAQf8MS4U/


































