Architects: Camilo Rebelo
Location: Fideris, Switzerland
Current Room Area: 20,8 sq.meters
Previous Room Area: 39,1 sq.meters
Year: 2014
Photographs: Office archive
Collaborators: Patricio Guedes
Project Partner : sculptor: Rui Chafes
Engineering Coordination: GOP – Gabinete de Organização e Projectos Lda.
Foundations And Structure: Jorge Nunes da Silva, Edgar Lima, Raquel Dias
Electrical Installations: Alexandre Martins
Mechanical Installations: João Sousa
Construction Manager: Fernando Dias
Construction: Matriz
Construction – Wood: José Simões, Pedro Simões
Construction – Marble: Augusto Sousa
Construction – Electrical Systems: Alfredo Aguiar, João Aguiar
Client: O. J.

From the architect. EGG project was an order from a client full of restlessness – OJ.
OJ acquired a sculpture, called ‘Seed’, of the contemporary Portuguese artist Rui Chafes. The piece built in iron finds its purpose in the universality of OJ’s mind that seeks values such as origin, purity and universal mystery.
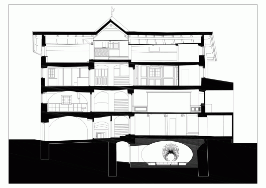
In a second stage, OJ threw us the challenge to design and build a space to receive and expose the ‘Seed’, promoting a deep reflection between Art and Architecture. The designed space is in the basement of his home in Fideris, located in the Swiss Alps.

The ‘Trojan Egg’ was the first stage of the project. The objective of this wooden egg was to create a void, revealing a new dimension and through it enhance mystery. The mystery is a condition that is very close to disappear from our civilization. This value is for us one of the main reasons for life and the egg is the dimension we choose to express it.

As architects, from the beginning, we wanted to design a space that was in fully consonance with Rui Chafes’s sculpture. The ‘Seed’ brought us immediately issues related to the purity and the origin of our existence and in this sense our proposal was to build a cocoon, avoiding the usual edges.

The project seeks to establish a direct relationship between three components: sculpture, void and the observer. Weight and thickness were key aspects to this construction. This space was almost entirely constructed with white concrete which has been poured at once from the upper floor, between the ancient masonry stone walls and the wooden mold.

The lighting, indirect and mysterious, arises through the floor where a very thin marble layer allows to emphasize its translucent nature, omitting the source. The intensity and the light colour can be changed allowing different perceptions of the space and the sculpture, in real time. The experience is always unique, unrepeatable and personal. The ‘Seed’ is suspended in the air.

OVO / Camilo Rebelo originally appeared on ArchDaily, the most visited architecture website on 27 Mar 2015.
send to Twitter | Share on Facebook | What do you think about this?
Source:: http://feedproxy.google.com/~r/ArchDaily/~3/7dkDzRwDhAw/

























