Phoenix House / Anderson Anderson Architecture

By Fabian Cifuentes

Architects: Anderson Anderson Architecture
Location: Berkeley, CA, USA
Architect In Charge: Mark Anderson, Peter Anderson
Design Team: Anderson, Peter Anderson, Johnson Tang, Yevgeniy Ossipov, Gennifer Muñoz, Yingying Xue, Jia Wu, Chris Campbell
Project Manager: Yevgeniy Ossipov
Area: 3700.0 ft2
Photographs: Anthony Vizzari

From the architect. The Phoenix house is named for the mythical bird that rose from the ashes of fire to start a new life. This home on a hillside site looking across San Francisco Bay to a panoramic view of San Francisco and the Golden Gate Bridge is a rebuild following a tragic fire on the site. The original house was built in 1952 by Berkeley architect Henry Hill for the family of a local lighting fabricator who collaborated with many important Bay Area artists, artisans and architects, from early masters such as Julia Morgan and Bernard Maybeck, to the region’s mid-century modern masters. With this legacy, the original home was filled with works of art and craft from local craftspeople and the family’s travels in and the Middle East, much of which was lost in the fire.

Now in the hands of the fourth generation of the original family, the owner charged the architects with the design and construction of a new building on the original courtyard footprint, not a copy of the original, but a new design that collaborates with the ideas of the original architect, an important experimenter in mid-twentieth century Bay Area architecture.

Synthesizing many ideas of the original architect, the new architects used the same local materials and traditional carpentry forms, while experimenting with new methods of construction. Employing off-site prefabrication of modular components, CNC cutting and milling of timber frame, window, and millwork components, laser cutting of all steel components, and off-site panelization of wall and floor assemblies, the building represents a confluence of traditional and experimental technologies. Pre-fabricating most components off-site allowed for considerable savings in time, minimized material and energy waste, and shortened the period of disturbance in the developed neighborhood.

The low-slung, light-filled house is built around a central garden courtyard shielded from the typically strong winds of the site and frequent passage of thick fog. Views, light, privacy and natural ventilation are all carefully modulated on each surface to harness natural qualities and attributes of the site while maximizing indoor/outdoor comfort and minimizing energy consumption. Using local, natural materials and energy-efficient fixtures and systems; practicing resource-conscious building; pre-planning chases, conduits and connections for future energy production systems and evolving media technologies, the house is intended to bridge the celebrated qualities of mid-Twentieth Century modern Bay Area architecture and life with future technologies and current environmental responsibilities. Most importantly, the house represents a respectful evolution in modernist architecture, construction craft, and the unique qualities of joyful life in the natural environment of California.

Phoenix House / Anderson Anderson Architecture © Anthony Vizzari
Phoenix House / Anderson Anderson Architecture © Anthony Vizzari
Phoenix House / Anderson Anderson Architecture © Anthony Vizzari
Phoenix House / Anderson Anderson Architecture © Anthony Vizzari
Phoenix House / Anderson Anderson Architecture © Anthony Vizzari
Phoenix House / Anderson Anderson Architecture © Anthony Vizzari
Phoenix House / Anderson Anderson Architecture © Anthony Vizzari
Phoenix House / Anderson Anderson Architecture © Anthony Vizzari
Phoenix House / Anderson Anderson Architecture © Anthony Vizzari
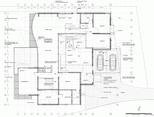
Phoenix House / Anderson Anderson Architecture Floor Plan
Phoenix House / Anderson Anderson Architecture Roof Floor Plan
Phoenix House / Anderson Anderson Architecture Lower Floor Plan
Phoenix House / Anderson Anderson Architecture Site Plan
Phoenix House / Anderson Anderson Architecture East Elevation
Phoenix House / Anderson Anderson Architecture North Elevation
Phoenix House / Anderson Anderson Architecture West Elevation
Phoenix House / Anderson Anderson Architecture South Elevation
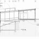
Phoenix House / Anderson Anderson Architecture Section
Phoenix House / Anderson Anderson Architecture Section
Phoenix House / Anderson Anderson Architecture Diagram

Source:: http://feedproxy.google.com/~r/ArchDaily/~3/f1SMFVZ9hAo/

Subscribe
Notify of
guest
0 Comments
Inline Feedbacks
View all comments