Architects: GutGut
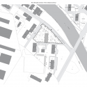
Location: Rimavská Sobota, Slovakia
Partners In Charge: Štefan Polakovič, Lukáš Kordík
Project Team: Štefan Polakovič, Lukáš Kordík, Peter Jurkovič, Roman Halmi, Jana Benková, Ivan Príkopský, Katarína Príkopská
Area: 3775.0 sqm
Year: 2014
Photographs: Courtesy of GutGut

From the architect. This tower block conversion demonstrates our interpretation of the current trend of reconstructing prefabricated housing stock.

Our project sensitively responds to the existing context, while simultaneously revealing parts of its interior.

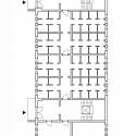
The original storage facilities located on the ground floor were replaced by new amenities for the residents –a café, a gym and a sauna –all connected onto the external terrace.

The renewed building envelope is simple and compact, embellished with suspended steel balconies which add a distinctive feature.

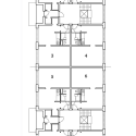
The reconstruction also involved removal of prefabricated partitions, opening up the floor plan though the entire cross section of the building, enhancing the spatial character of the apartments, the best of which are located in the roof extension.

Prefab House In Rimavska Sobota / GutGut originally appeared on ArchDaily, the most visited architecture website on 28 Feb 2015.
send to Twitter | Share on Facebook | What do you think about this?
Source:: http://feedproxy.google.com/~r/ArchDaily/~3/iODztwIIBS8/

































