Architects: Dualchas Architects
Location: Waternish, Isle of Skye, Highland IV55, UK
Year: 2012
Photographs: Andrew Lee
Main Contractor: James MacQueen

From the architect. Our clients, a family of 5 came to us with a site and a sketch which described their brief. The site is an elevated bare croftland site with views over Dunvegan bay to the Waternish peninsula. It has long views to the north to Isle of Harris and south towards Dunvegan. To the west is a wooded cliff.

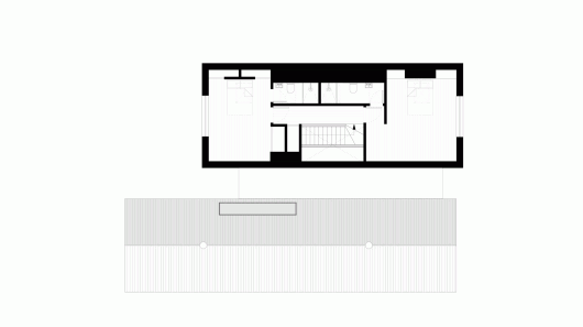
The brief was for an open plan living/dining/lounge but also separate games room and study/sitting room and 4 bedrooms. The main living space can be divided off from the back bedrooms by means of a 3 m sliding oak screen. There was to be a separate shed for storage and wood store and heat pump shelter.

The design is directly inspired by a black shed on the adjacent croft, simple in form and clearly rooted to its landscape. The form developed out of a desire to lose the bulk of the relatively large building into the shadow of the cliff behind so that the 1 ½ storey element containing all the bedrooms sits behind the main simple communal living space in front.

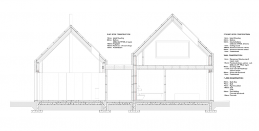
High insulation levels — 260mm to the roof and 200mm to the walls — as well as good quality windows, mean little heating is required, much of this provided by the wood burners in the living spaces, with background heating supplied by an air source heat pump.

The roofs are constructed with 10mm aluminium roof sheeting, finished with black Plannja Hard Coat surface coating and laid on battens. The 18mm Siberian larch rainscreen cladding to the walls has been stained black with an OSMO water-based product.

Flush detailing to the building envelope, achieved by concealing the galvanised steel gutters and downpipes, gives the volumes a taut appearance and the overall composition one of a grouping of distinct and simple forms.

From the road it appears as a simple low agricultural building discreet and low lying. The buildings are grouped around a tight courtyard that offers shelter from the wind and an opportunity to shower before entering the house.

It now sits low in the landscape and can be read as the black farm buildings that compliment the white farmhouse built by the sister next door.

Private Residence on Isle of Skye / Dualchas Architects originally appeared on ArchDaily, the most visited architecture website on 11 Feb 2015.
send to Twitter | Share on Facebook | What do you think about this?
Source:: http://feedproxy.google.com/~r/ArchDaily/~3/VTfqXdjGkeg/



















