Architects: A+I
Location: Flatiron District, New York, NY, USA
Area: 15000.0 ft2
Year: 2013
Photographs: Courtesy of A+I
Collaborators: A+I Team: Sommer Schauer, Phil Ward, Amy Mielke, Megan Marvin, Alan Calixto
Lighting: Lighting Workshop
Mep: Robert Derector Associates
Manufacturers/Suppliers: Metalwork: 4th State Metals
Custom Millwork: Rob Fiorella
Carpet: Interface
Furniture: Blu Dot, Maxwell Blake, Herman Miller

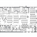
From the architect. Purpose is a creative strategy consulting agency largely focused on organizing mass online movements. They took a floor in the mansard roof storage space of the old Arnold Constable Department Store (now defunct) on 5th avenue.

The space was particularly challenging because the windows started at 6′ above the floor. New platforms were added along the perimeter containing war rooms for the various organizations and movements purpose has launched.

The platforms and ramp connect at the open pantry with tiered levels for presentations and events. Custom desks are economically made from sheets of plywood, rubber and 4×4 posts.

Purpose / A+I originally appeared on ArchDaily, the most visited architecture website on 14 Jun 2015.
send to Twitter | Share on Facebook | What do you think about this?
Source:: http://feedproxy.google.com/~r/ArchDaily/~3/oxVPx3J-QL4/














