Renovation and Extension Gymnasium in Vagney / Abc Studio Architects + Christian Vincent Architect

By AD Editorial Team

Architects: Abc Studio Architects,
Location: France
Area: 1350.0 sqm
Year: 2014
Photographs: Cyrille Lallement

From the architect. Program: Add an extension for hall, changing rooms, and dance room.

Context: In the heart of Vosges French mountains, between the city hall and the sport stadium. In front of the panoramic view on mountains.

Aim: Create a link between existing building and landscape.

Project: An extension is created on the North Facade. The new volume, simple, is a window on landscape.

The project is an articulation, between existing spaces and new spaces, and open the building on exterior spaces. Concrete monolith, the project is opened by two windows: one on the existing gymnasium, one on landscape. The extension makes a dialogue.

In a flood zone, the extension is not at the same altimetry as the existing gymnasium: two ramps along the facades and windows. The ramps become “travellings”.

The interior spaces, such as the exterior of the volume are gross. The spaces are functional and are animated by the activity of users. Natural materials are expressed, wood and concrete.

Lightings are integrated into the wall thickness, and reveal the openings.

Technically: Concrete structure, natural wood interior skin.

The window between existing gymnasium and extension reveal the existing steel structure, which is different of simple geometry of the extension.

Renovation and Extension Gymnasium in Vagney / Abc Studio Architects + Christian Vincent Architect © Cyrille Lallement
Renovation and Extension Gymnasium in Vagney / Abc Studio Architects + Christian Vincent Architect © Cyrille Lallement
Renovation and Extension Gymnasium in Vagney / Abc Studio Architects + Christian Vincent Architect © Cyrille Lallement
Renovation and Extension Gymnasium in Vagney / Abc Studio Architects + Christian Vincent Architect © Cyrille Lallement
Renovation and Extension Gymnasium in Vagney / Abc Studio Architects + Christian Vincent Architect © Cyrille Lallement
Renovation and Extension Gymnasium in Vagney / Abc Studio Architects + Christian Vincent Architect © Cyrille Lallement
Renovation and Extension Gymnasium in Vagney / Abc Studio Architects + Christian Vincent Architect © Cyrille Lallement
Renovation and Extension Gymnasium in Vagney / Abc Studio Architects + Christian Vincent Architect © Cyrille Lallement
Renovation and Extension Gymnasium in Vagney / Abc Studio Architects + Christian Vincent Architect © Cyrille Lallement
Renovation and Extension Gymnasium in Vagney / Abc Studio Architects + Christian Vincent Architect © Cyrille Lallement
Renovation and Extension Gymnasium in Vagney / Abc Studio Architects + Christian Vincent Architect © Cyrille Lallement
Renovation and Extension Gymnasium in Vagney / Abc Studio Architects + Christian Vincent Architect © Cyrille Lallement
Renovation and Extension Gymnasium in Vagney / Abc Studio Architects + Christian Vincent Architect © Cyrille Lallement
Renovation and Extension Gymnasium in Vagney / Abc Studio Architects + Christian Vincent Architect © Cyrille Lallement
Renovation and Extension Gymnasium in Vagney / Abc Studio Architects + Christian Vincent Architect © Cyrille Lallement
Renovation and Extension Gymnasium in Vagney / Abc Studio Architects + Christian Vincent Architect Master Plan
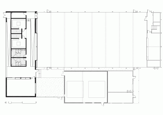
Renovation and Extension Gymnasium in Vagney / Abc Studio Architects + Christian Vincent Architect Floor Plan
Renovation and Extension Gymnasium in Vagney / Abc Studio Architects + Christian Vincent Architect North Elevation
Renovation and Extension Gymnasium in Vagney / Abc Studio Architects + Christian Vincent Architect South Elevation
Renovation and Extension Gymnasium in Vagney / Abc Studio Architects + Christian Vincent Architect East Elevation
Renovation and Extension Gymnasium in Vagney / Abc Studio Architects + Christian Vincent Architect West Elevation
Renovation and Extension Gymnasium in Vagney / Abc Studio Architects + Christian Vincent Architect Section 1
Renovation and Extension Gymnasium in Vagney / Abc Studio Architects + Christian Vincent Architect Section 2
Renovation and Extension Gymnasium in Vagney / Abc Studio Architects + Christian Vincent Architect Section 3
Renovation and Extension Gymnasium in Vagney / Abc Studio Architects + Christian Vincent Architect Section 4
Renovation and Extension Gymnasium in Vagney / Abc Studio Architects + Christian Vincent Architect Section 5
Renovation and Extension Gymnasium in Vagney / Abc Studio Architects + Christian Vincent Architect Section 6
Renovation and Extension Gymnasium in Vagney / Abc Studio Architects + Christian Vincent Architect Section 7

Source:: http://feedproxy.google.com/~r/ArchDaily/~3/x-9FaGobkIc/

Subscribe
Notify of
guest
0 Comments
Inline Feedbacks
View all comments