River Cottage HQ / Satellite Architects

By Fabian Cifuentes

Architects: Satellite Architects
Location: Trinity Hill Road, Axminster, Devon EX13 5SS, UK
Area: 285.0 sqm
Year: 2014
Photographs: Alex Campbell

Landscape And Planning Consultants: Satellite Architects
Structural Engineers: Barry Honeysett (Listed Building) Evolve (Other Buildings)
M&E Consultant: Mechanical Installation designed by Biomass contractor
Quantity Surveyor: Heasmans
Project Manager: Draco Property
Planning Supervisor And Approved Inspector: Butler & Young Consultants Limited
Lighting Consultant: Satellite Architects
Main Contractor: Jonny Starr, Magenta Conservation

From the architect. River Cottage HQ acts as a home for the numerous River Cottage activities such as ‘Catch and Cook’ and ‘Pig in ta Day’. The site is used for the filming for Hugh Fearnley-Whittingstall’s River Cottage TV Programme.

The buildings on the site exemplify the beauty and history of the existing buildings while modern insertions of the cookery school and soon to be constructed accommodation building help to make them fit for purpose and comfortable to current standards. This project accentuates an Area of Outstanding Natural Beauty by making it productive and educational for all who wish to learn.

The project has a fully sustainable policy on building materials, energy and carbon output and a fully recyclable policy on waste. The site has been developed to ensure low carbon emissions and a fully renewable energy system for the site. Water will be collected and harvested for use on the site in all needs, from WC flushing, agricultural and garden production. Artesian sources are used for potable water. ­ In addition to the energy, water and recycling policies; relationships have been fostered with local suppliers and local craftsmen for the regional building materials and techniques such as Devon cobb and rammed earth.

As a rural courses centre, River Cottage has created a fully sustainable headquarters on an existing farm from which to run their operation. Satellite has created a headquarters that reinvents an existing and disused farm reactivating the existing buildings for a use that exemplifies their original purpose and connection with the land. Satellite acted as the sustainability experts and planned a comprehensive strategy for energy creation, and over all low impact for River Cottage’s activities.

The existing farm site included a 17th century Cobb farmhouse, an 18th century chert-threshing barn. The farmhouse was renovated to function as a sustainable inn for visitors to River Cottage events and the threshing barn was renovated as one of the two event spaces and the main kitchen.

The site has made a substantial achievement in its sustainability. It creates all its own electricity from their wind turbine and solar panel for the water pump. All the heat is provided by the biomass boiler, which is fired with off-cuttings from the local . Rain water is used for garden watering and WC flushing, Reed beds assure no effluence is put into the sewer system, The cars used for there operation to deliver items from the headquarters to the canteen in near by Axminster and the tractor that delivers visitors from the car park to the event buildings are run on chip fat lessening the use of fossil fuels.

River Cottage HQ / Satellite Architects © Alex Campbell
River Cottage HQ / Satellite Architects © Alex Campbell
River Cottage HQ / Satellite Architects © Alex Campbell
River Cottage HQ / Satellite Architects © Alex Campbell
River Cottage HQ / Satellite Architects © Alex Campbell
River Cottage HQ / Satellite Architects © Alex Campbell
River Cottage HQ / Satellite Architects © Alex Campbell
River Cottage HQ / Satellite Architects © Alex Campbell
River Cottage HQ / Satellite Architects © Alex Campbell
River Cottage HQ / Satellite Architects © Alex Campbell
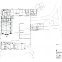
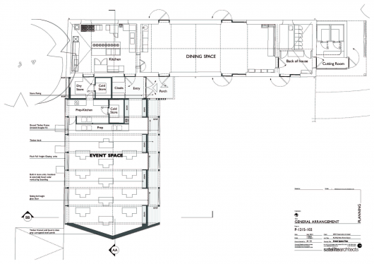
River Cottage HQ / Satellite Architects Floor Plan
River Cottage HQ / Satellite Architects Floor Plan
River Cottage HQ / Satellite Architects Elevation
River Cottage HQ / Satellite Architects Elevation
River Cottage HQ / Satellite Architects Elevation
River Cottage HQ / Satellite Architects Elevation

Source:: http://feedproxy.google.com/~r/ArchDaily/~3/9u-Vk-9pFys/

Subscribe
Notify of
guest
0 Comments
Inline Feedbacks
View all comments