Architects: MMCV
Location: Villa Devoto, Buenos Aires, Argentina
Project Architects: Sergio Mizraji, Jacquelin Cicchinelli
Project Area: 680.0 m2
Project Year: 2012
Photographs: Daniela Mac Adden
Project Director: Andrés Gagliardi
Site Manager: Patricia Barragan
Structures: José A. Zaldua
Construction: KARPEL Hermanos S.R.L.

From the architect. The concept for this building was experimenting with a form of construction that could be transferred to other projects that the studio could do in the future, adapting it but not repeating it. We thus put the accent on the construction, finishes and development of a system, working on abstract and general ideas such as generating concrete ribbons and boxes to design the facade.

With a non-traditional response for a corner lot and rectangular proportions, the building is setback from the two front lines further in the short side than the long side.

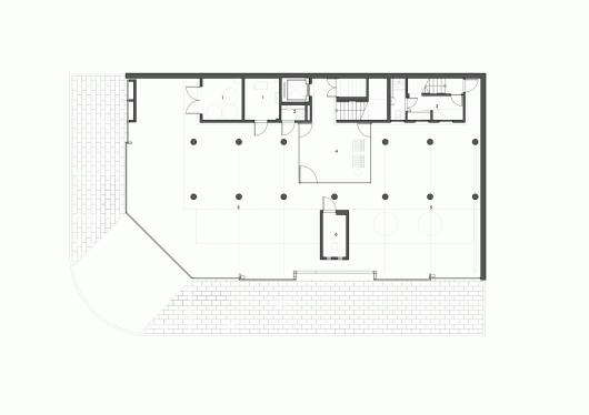
This is a seminal project in terms of testing and experimenting with a technique which then would lead to a form of work, as the adoption of an overall height of 2.60 m. with a floor thickness of 0.40 m including beams and subflooring, where all building services and continuous ceiling are set. Here the use of interior and exterior framing begins to develop from floor to ceiling avoiding openings, and the resolution of the concrete structure as a material of the project, both in the classical sense of texture, as well as a defining element that allows the formation of an open floor from generating a “transition plan” with 0.60 m thick beams, average height, with variable widths between 0.60 and 1.00 m- that enable to vary the arrangement and section of the columns on the base and the rest of the building.

This idea of an “extreme” open ground floor with circular columns, where the entire ceiling is at the same level and the halls don’t have any light fixtures and instead incorporate them into the railings, was the starting point for new projects that evolved from this model.

The ground floor contains the access, a machine room, elevator, and the service area of the first floor apartment. Also the garage where the height difference from the modulation of the housing plans absorbs the transition level which in this building is also adapted to obtain the proportions that we wanted in the facade.

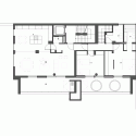
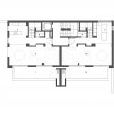
The first floor has an apartment across the entire level where the main rooms open onto the front and services to the back; upstairs are two duplex units, mirrored, which on the lower level have the most public spaces with double height dining room and private areas on top, with a courtyard in each unit, which one of the owners chose to close in order to turn into a spa area. On the top floor the duplex units have a terrace divided by a stone wall with a jacuzzi in situ and grills to the side of the party wall.

This project is the starting point where constructive resolutions are applied, which then become part of the technique and way of working of the studio.

Salvador María del Carril 3816 / MMCV originally appeared on ArchDaily, the most visited architecture website on 27 Mar 2015.
send to Twitter | Share on Facebook | What do you think about this?
Source:: http://feedproxy.google.com/~r/ArchDaily/~3/SlSl2xp2VHI/























