Architects: Atelier130
Location: Mkalles, Lebanon
Architects In Charge: Nathalie Habr, Halim Khoriaty
Area: 1111.0 sqm
Year: 2014
Photographs: Ieva Saudargaité
Structural Engineer: P.A.R consultants (Pierre Abi Rached)
Electro Mechanical Engineer: WTA (Wissam Tawil)
General Contractor: SK Group (Sarkis Keuchguerian)

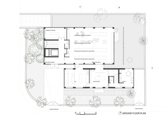
From the architect. The concept behind the main headquarters of this luxury soap brand revolves around the actual soap bar. Inspired by the intricate packaging of the company’s soaps, the structure was first conceived as a box, sliced in half.

Around the two distinct structures, a garden alive with greenery and a variety of aromas that linger and welcome visitors, reminiscent of the variety of soap scents.

The first structure, where the company’s manufacturing plant is located, is covered by a woven metal wire mesh on top of a wall covered with the brand’s soap patterns.

The second structure, which hosts the company’s offices, benefits from wide openings, protected from the sun thanks to sliding aluminum louvers that bring privacy to employees.

Senteurs d’Orient Headquarters / Atelier130 originally appeared on ArchDaily, the most visited architecture website on 20 Feb 2015.
send to Twitter | Share on Facebook | What do you think about this?
Source:: http://feedproxy.google.com/~r/ArchDaily/~3/CBuNB8L2Jyo/








































