Architects: I/O Architects
Location: Targovishte, Bulgaria
Site Area: 6970 sq. m.
Area: 672.0 sqm
Year: 2014
Photographs: Asen Emilov

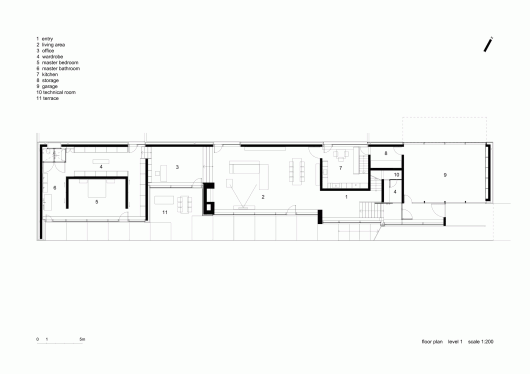
From the architect. Single family house. Large living and dining space. Home office. One master bedroom. Two guest bedrooms. Large veranda space. Three cars garage.

The topography of the park environment around the house resembles a cavea of an antic theater. The long horizontal structure is facing the favorable sun orientation and the view in slight opposition of the slope. This way entering diagonally into the house the height of the spaces changes in relation to their grade of privacy. In the opposite direction and apart from the main progression are the guest rooms over the compressed space of the entrance and the garage.

The internal structure corresponds to the complementary space of the stairs-like veranda facing the park as well as to the terraced yards behind the house. The monolith appearance of the stone claddedfaçades and the oversized architectural elements, from one side and the perspective corrections of the front elevation from the other, modulate in an ambiguous way the scale of the large structure.

Sustainability
Passive sun shading in the summer. Clear glass for sun energy gain in the winter. Heat pump with ground-coupled heat exchanger for heating and cooling. Floor heating. Use of local stone. Low thermal conductivity envelope.

Slight Slope Long House / I/O Architects originally appeared on ArchDaily, the most visited architecture website on 08 Mar 2015.
send to Twitter | Share on Facebook | What do you think about this?
Source:: http://feedproxy.google.com/~r/ArchDaily/~3/DnkIxleaRfk/




























