- Architects: Fischer Architekten
- Location: Sonnenhof, 8468 Waltalingen, Switzerland
- Area: 12679.0 sqm
- Project Year: 2011
- Photographs: Michael Egloff
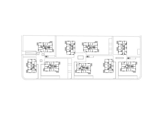
From the architect. Study, Regensdorf 2011, first place: Three structures form a cluster, each of which has a central courtyard. The positioning of the three clusters results in the optimal exposure and minimal shading of the total of 140 apartments.

The apartments are based on a clear, systematic structure that is based on the addition of equal room groups and which allows for several apartment sizes. Balconies project out on each side into the green spaces. They shape the appearance of the otherwise plain building and render it subtly concise and unique.

.jpg?1443050766)

Openings with dark surrounds positioned in line with the interplay of the balconies and therefore also staggered, contrast with the prevailing bright colour of the apartment buildings.


